Tu correo electrónico ha sido enviado.



Parte de la información se ha traducido automáticamente.
ASPECTOS DESTACADOS DE SUBARRENDAMIENTO
- Embarcadero Center cuenta con un centro de servicios con área de recepción, espacios para reuniones, terraza y salón al aire libre, área de bar y espacio social para eventos.
- Tenants enjoy stunning city views and gorgeous San Francisco Bay views.
- Ideally located near BART stations and an abundance of San Francisco restaurants and retailers.
- The professional space features a focused environment for work and study.
ESPACIO DISPONIBLES(1)
Mostrar el precio como
- ESPACIO
- TAMAÑO
- DURACIÓN
- PRECIO
- USO
- DISTRIBUCIÓN
- DISPONIBILIDAD
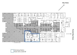
This space is presented at a flexible term of 2-6 years with the potential to demise. It is the ideal layout for financial services firms and law practices. It features 29 window-lined offices, five meeting rooms, an oversized boardroom with Bay views, a double-door entry reception, and abundant natural light. All FF&E can be provided.
- Espacio de subarrendamiento disponible del inquilino actual
- 31 oficinas privadas
- 24 puestos de trabajo
- Aire acondicionado central
- Construido totalmente como Oficina estándar
- 2 salas de conferencias
- Espacio en excelentes condiciones
| Espacio | Tamaño | Duración | Precio | Uso | Distribución | Disponible |
| Planta 5, módulo 550 | 238-1.696 m² | Oct. 2031 | Bajo solicitud Bajo solicitud Bajo solicitud Bajo solicitud | Oficina | Construcción total | Inmediata |
Planta 5, módulo 550
| Tamaño |
| 238-1.696 m² |
| Duración |
| Oct. 2031 |
| Precio |
| Bajo solicitud Bajo solicitud Bajo solicitud Bajo solicitud |
| Uso |
| Oficina |
| Distribución |
| Construcción total |
| Disponible |
| Inmediata |
Planta 5, módulo 550
| Tamaño | 238-1.696 m² |
| Duración | Oct. 2031 |
| Precio | Bajo solicitud |
| Uso | Oficina |
| Distribución | Construcción total |
| Disponible | Inmediata |
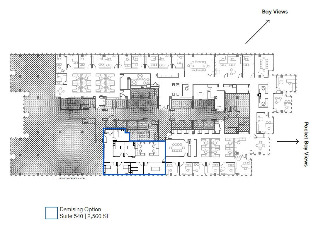
This space is presented at a flexible term of 2-6 years with the potential to demise. It is the ideal layout for financial services firms and law practices. It features 29 window-lined offices, five meeting rooms, an oversized boardroom with Bay views, a double-door entry reception, and abundant natural light. All FF&E can be provided.
- Espacio de subarrendamiento disponible del inquilino actual
- Construido totalmente como Oficina estándar
- 31 oficinas privadas
- 2 salas de conferencias
- 24 puestos de trabajo
- Espacio en excelentes condiciones
- Aire acondicionado central
DESCRIPCIÓN GENERAL DEL INMUEBLE
Embarcadero Center, uno de los complejos de uso mixto más grandes del oeste de los EE. UU., se extiende por seis cuadras en el corazón del principal distrito comercial de San Francisco. Con cuatro millones de pies cuadrados de espacio para oficinas y tiendas, Embarcadero se compone de cinco torres de oficinas, tres niveles comerciales interconectados dentro de cuatro torres. Conocido por sus diversas instalaciones comerciales y de entretenimiento, el Centro cuenta con más de 125 tiendas minoristas y restaurantes y un cine con cinco salas. Se están realizando renovaciones en el vestíbulo del segundo piso. La propiedad cuenta con estacionamiento subterráneo para más de 2.000 vehículos, accesibilidad a BART, Muni y al sistema de transbordadores, vistas panorámicas, arquitectura emblemática, ventanales del suelo al techo, ventanas de doble parteluz para facilitar la planificación del espacio, pisos eficientes, conductos por suelo radiante, administración in situ, instalaciones para hacer ejercicio, instalaciones para conferencias, servicio de conserjería, seguridad las 24 horas y sistemas de seguridad vital de última generación.
- Centro de conferencias
- Gimnasio
- Property manager in situ
- Restaurante
- Con etiqueta Energy Star
INFORMACIÓN DEL EDIFICIO
PRINCIPALES INQUILINOS
- PLANTA
- NOMBRE DEL INQUILINO
- SECTOR
- 12
- Allen Matkins
- Servicios técnicos, científicos y profesionales
- Varios
- Arnold & Porter
- Servicios técnicos, científicos y profesionales
- 7
- Bryan Cave Leighton Paisner
- Servicios técnicos, científicos y profesionales
- Varios
- Cooley LLP
- Servicios técnicos, científicos y profesionales
- 26
- Crowell and Moring LLP
- Servicios técnicos, científicos y profesionales
- 24
- Polsinelli PC
- Servicios técnicos, científicos y profesionales
- Varios
- Ropes & Gray
- Servicios técnicos, científicos y profesionales
- 23
- TransRe
- Finanzas y seguros
- 8
- Troutman Pepper
- Servicios técnicos, científicos y profesionales
- 5
- White Oak Credit Services, LLC
- Servicios técnicos, científicos y profesionales
Elaborado por
Three Embarcadero Ctr
Parece que se ha producido un error al enviar tu mensaje. Vuelve a intentarlo.
Gracias. Se ha enviado tu mensaje.



