Tu correo electrónico ha sido enviado.



Parte de la información se ha traducido automáticamente.
ASPECTOS DESTACADOS
- El Pacific Guardian Center es una plaza diseñada con espacios de patio abiertos, meticulosamente ajardinados con una fuente acuática que mejora la estética.
- Los inquilinos disfrutan de la administración, la planificación y el arrendamiento in situ, la seguridad las 24 horas y los profesionales de ingeniería, mantenimiento y limpieza.
- Los negocios son más fáciles gracias a los servicios in situ, que incluyen una cafetería con mesas para sentarse, una tienda de conveniencia, entrega de correo, reparación de automóviles, bancos, servicios dentales y ópticos.
- Espacios de trabajo integrados que ofrecen a los inquilinos una variedad de opciones y servicios de proveedores de telecomunicaciones, además de salas de reuniones y conferencias compartidas.
- Disfrute de una tecnología de ascensores eficiente diseñada para transportar sin problemas a los empleados a las oficinas en segundos mediante el sofisticado despacho de destino.
- Cómodo acceso al distrito central de negocios de Honolulú, a las oficinas gubernamentales federales, estatales y del condado, y a todos los tribunales.
INFORMACIÓN DEL PARQUE EMPRESARIAL
ESPACIOS DISPONIBLES(54)
Mostrar el precio como
- ESPACIO
- TAMAÑO
- DURACIÓN
- PRECIO
- USO
- DISTRIBUCIÓN
- DISPONIBILIDAD
Queen Street frontage with multiple private offices and kitchenette. High quality finishes
- El precio de alquiler no incluye ciertos gastos del inmueble
- Con capacidad para 7-22 personas
- 1 sala de conferencias
- Espacio en excelentes condiciones
- Almacenamiento seguro
- Entrada para el personal del lobby de la Torre Mauka para facilitar el acceso
- Construido totalmente como Oficina de servicios profesionales
- 4 oficinas privadas
- 1 puesto de trabajo
- Cocina
- Fachada de Queen Street
Full floor availability with perimeter of offices, kitchen, reception area, conference room and open space
- Construido parcialmente como Oficina estándar
- Con capacidad para 37-118 personas
- Espacio en excelentes condiciones
- Área de recepción
- Plano de planta abierta
- 1 sala de conferencias
- Se puede combinar con otros inmuebles hasta un total de 2.721 m² de espacio adyacente
- Cocina
Full floor availability ready for space plan
- Construido parcialmente como Oficina estándar
- Con capacidad para 37-117 personas
- Plano de planta abierta
- Se puede combinar con otros inmuebles hasta un total de 2.721 m² de espacio adyacente
Multiple offices with open area and available water
- Construido totalmente como Oficina estándar
- Con capacidad para 9-85 personas
- Plano con mucho espacio para oficinas
- Se puede combinar con otros inmuebles hasta un total de 984 m² de espacio adyacente
4 offices, conference room, and open space
- Construido totalmente como Oficina estándar
- 4 oficinas privadas
- Se puede combinar con otros inmuebles hasta un total de 984 m² de espacio adyacente
- Con capacidad para 5-85 personas
- 1 sala de conferencias
7 offices, reception area, conference room, and kitchen
- Construido totalmente como Oficina estándar
- 7 oficinas privadas
- Área de recepción
- Con capacidad para 7-85 personas
- Se puede combinar con otros inmuebles hasta un total de 984 m² de espacio adyacente
- Cocina
Open layout
- Construido totalmente como Oficina estándar
- Con capacidad para 7-85 personas
- Espacio diáfano
- Plano de planta abierta
- Se puede combinar con otros inmuebles hasta un total de 984 m² de espacio adyacente
Multiple private offices, conference room, kitchenette.
- Con capacidad para 19-59 personas
1 private office, open space, and kitchen
- Construido totalmente como Oficina estándar
- 1 oficina privada
- Con capacidad para 7-23 personas
- Cocina
4 windowed private office.
- Con capacidad para 4-10 personas
1 private office, open space and water
- Construido totalmente como Oficina estándar
- Con capacidad para 8-25 personas
- Espacio diáfano
- Plano de planta en su mayoría abierta
- 1 oficina privada
Open layout.
- Construido parcialmente como Oficina estándar
- Con capacidad para 6-19 personas
- Plano de planta abierta
- Espacio diáfano
7 private offices
- Construido totalmente como Oficina estándar
- Con capacidad para 9-32 personas
- 1 sala de conferencias
- Listo para usar
- Plano de planta en su mayoría abierta
- 7 oficinas privadas
- 25 puestos de trabajo
- Cocina
Former law office with multiple private offices and conference rooms.
- Construido totalmente como Despacho de abogados
- Con capacidad para 14-43 personas
- Plano con mucho espacio para oficinas
Shell space
- Plano de planta abierta
Former law office with dense window line office build out.
- Construido parcialmente como Oficina estándar
- Con capacidad para 25-78 personas
- Área de recepción
- Plano de planta en su mayoría abierta
- Salas de conferencias
2 private window offices, interior conference room, and storage.
- Construido totalmente como Oficina estándar
- 2 oficinas privadas
- Storage
- Con capacidad para 4-11 personas
- Salas de conferencias
| Espacio | Tamaño | Duración | Precio | Uso | Distribución | Disponible |
| Planta 1, módulo 116 | 253 m² | Negociable | Bajo solicitud Bajo solicitud Bajo solicitud Bajo solicitud | Oficina | Construcción total | Inmediata |
| Planta 11, módulo 1100 | 1.367 m² | Negociable | Bajo solicitud Bajo solicitud Bajo solicitud Bajo solicitud | Oficina | Construcción parcial | Inmediata |
| Planta 12, módulo 1200 | 1.354 m² | Negociable | Bajo solicitud Bajo solicitud Bajo solicitud Bajo solicitud | Oficina | Construcción parcial | Inmediata |
| Planta 14, módulo 1400 | 323 m² | Negociable | Bajo solicitud Bajo solicitud Bajo solicitud Bajo solicitud | Oficina | Construcción total | Inmediata |
| Planta 14, módulo 1420 | 157 m² | Negociable | Bajo solicitud Bajo solicitud Bajo solicitud Bajo solicitud | Oficina | Construcción total | Inmediata |
| Planta 14, módulo 1430 | 257 m² | Negociable | Bajo solicitud Bajo solicitud Bajo solicitud Bajo solicitud | Oficina | Construcción total | Inmediata |
| Planta 14, módulo 1480 | 248 m² | Negociable | Bajo solicitud Bajo solicitud Bajo solicitud Bajo solicitud | Oficina | Construcción total | Inmediata |
| Planta 15, módulo 1590 | 682 m² | Negociable | Bajo solicitud Bajo solicitud Bajo solicitud Bajo solicitud | Oficina | - | 01/06/2026 |
| Planta 16, módulo 1655 | 256 m² | Negociable | Bajo solicitud Bajo solicitud Bajo solicitud Bajo solicitud | Oficina | Construcción total | Inmediata |
| Planta 18, módulo 1860 | 114 m² | Negociable | Bajo solicitud Bajo solicitud Bajo solicitud Bajo solicitud | Oficina | - | 15/01/2026 |
| Planta 18, módulo 1880 | 286 m² | Negociable | Bajo solicitud Bajo solicitud Bajo solicitud Bajo solicitud | Oficina | Construcción total | Inmediata |
| Planta 19, módulo 1960 | 216 m² | Negociable | Bajo solicitud Bajo solicitud Bajo solicitud Bajo solicitud | Oficina | Construcción parcial | Inmediata |
| Planta 21, módulo 2115 | 365 m² | Negociable | Bajo solicitud Bajo solicitud Bajo solicitud Bajo solicitud | Oficina | Construcción total | Inmediata |
| Planta 23, módulo 2340 | 490 m² | Negociable | Bajo solicitud Bajo solicitud Bajo solicitud Bajo solicitud | Oficina | Construcción total | Inmediata |
| Planta 23, módulo 2390 | 479 m² | Negociable | Bajo solicitud Bajo solicitud Bajo solicitud Bajo solicitud | Oficina | Espacio sin acabar | Inmediata |
| Planta 24, módulo 2400 | 902 m² | Negociable | Bajo solicitud Bajo solicitud Bajo solicitud Bajo solicitud | Oficina | Construcción parcial | Inmediata |
| Planta 27, módulo 2790 | 119 m² | Negociable | Bajo solicitud Bajo solicitud Bajo solicitud Bajo solicitud | Oficina | Construcción total | Inmediata |
737 Bishop St - Planta 1, módulo 116
737 Bishop St - Planta 11, módulo 1100
737 Bishop St - Planta 12, módulo 1200
737 Bishop St - Planta 14, módulo 1400
737 Bishop St - Planta 14, módulo 1420
737 Bishop St - Planta 14, módulo 1430
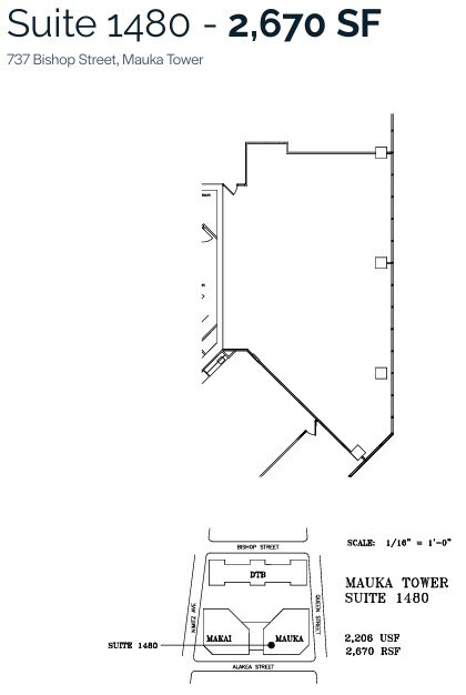
737 Bishop St - Planta 14, módulo 1480
737 Bishop St - Planta 15, módulo 1590
737 Bishop St - Planta 16, módulo 1655
737 Bishop St - Planta 18, módulo 1860
737 Bishop St - Planta 18, módulo 1880
737 Bishop St - Planta 19, módulo 1960
737 Bishop St - Planta 21, módulo 2115
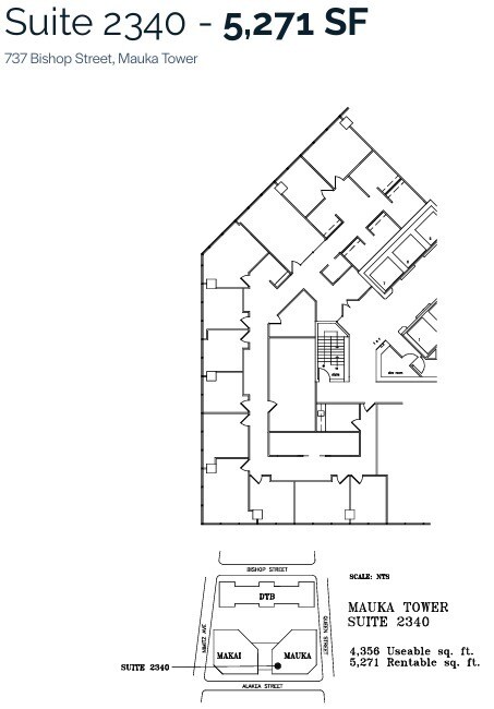
737 Bishop St - Planta 23, módulo 2340
737 Bishop St - Planta 23, módulo 2390
737 Bishop St - Planta 24, módulo 2400
737 Bishop St - Planta 27, módulo 2790
- ESPACIO
- TAMAÑO
- DURACIÓN
- PRECIO
- USO
- DISTRIBUCIÓN
- DISPONIBILIDAD
Ground floor space with courtyard frontage. 2 private office and open area.
- Construido totalmente como Oficina estándar
- 2 oficinas privadas
- Con capacidad para 4-11 personas
Nimitz/Alakea frontage. 1 private office and kitchenette
- Construido parcialmente como Oficina estándar
- Con capacidad para 3-9 personas
- Cocina
- Plano de planta en su mayoría abierta
- 1 oficina privada
Courtyard entrance and includes water
- Construido parcialmente como Oficina estándar
- Con capacidad para 3-9 personas
- Techos acabados: 2,90 metros
- Área de recepción
- Plano de planta abierta
- 1 sala de conferencias
- Espacio que necesita una reforma
3 private offices with a large conference room
- Construido totalmente como Oficina estándar
- 3 oficinas privadas
- Con capacidad para 4-10 personas
- 1 sala de conferencias
3 private offices, 2 large conference rooms, kitchenette.
- Construido totalmente como Oficina estándar
- 3 oficinas privadas
- Cocina
- Con capacidad para 7-23 personas
- 2 salas de conferencias
3 large private offices and open area.
- Construido totalmente como Oficina estándar
- 3 oficinas privadas
- Con capacidad para 4-10 personas
Open layout
- Construido totalmente como Oficina estándar
- Con capacidad para 8-23 personas
- Plano de planta abierta
- Espacio diáfano
3 private offices
- Construido totalmente como Oficina estándar
- 3 oficinas privadas
- Con capacidad para 4-13 personas
Open layout
- Construido totalmente como Oficina estándar
- Con capacidad para 3-7 personas
- Plano de planta abierta
Open layout
- Construido totalmente como Oficina estándar
- Con capacidad para 10-46 personas
- Plano de planta abierta
5 window line offices and 2 interior offices.
- Construido totalmente como Oficina estándar
- 7 oficinas privadas
- Con capacidad para 6-46 personas
- Luz natural
3 window offices and 2 interior offices.
- Construido totalmente como Oficina estándar
- 5 oficinas privadas
- Con capacidad para 4-12 personas
- Luz natural
Private offices, conference rooms, kitchenette with excellent views. Turn key opportunity with furniture included
- Con capacidad para 15-47 personas
3 private offices and kitchenette
- Construido totalmente como Oficina estándar
- 3 oficinas privadas
- Con capacidad para 4-10 personas
Upgraded suite with ocean front view, 2 private offices, new paint, carpet and LED lights, and kitchenette
- Plano de planta en su mayoría abierta
- 2 oficinas privadas
- Cocina
- Con capacidad para 4-12 personas
- Espacio en excelentes condiciones
Multiple private offices, conference room, and kitchenette with excellent views.
- Con capacidad para 17-54 personas
6 private offices, conference room, and storage room.
- Construido totalmente como Oficina estándar
- 6 oficinas privadas
- Con capacidad para 8-24 personas
- 1 sala de conferencias
5 private offices, kitchen, conference room, and open space
- Construido totalmente como Oficina estándar
- 5 oficinas privadas
- Cocina
- Con capacidad para 4-12 personas
- Salas de conferencias
3 offices and open area
- Construido totalmente como Oficina estándar
- 3 oficinas privadas
- Con capacidad para 3-9 personas
Open layout
- Construido totalmente como Oficina estándar
- Con capacidad para 4-11 personas
- Espacio diáfano
- Plano de planta abierta
- Espacio en excelentes condiciones
1 private office and an open layout.
- Construido totalmente como Oficina estándar
- Con capacidad para 4-11 personas
- Espacio diáfano
- Plano de planta en su mayoría abierta
- 1 oficina privada
High floor, Corner unit, open area with new ceiling and lights
- Plano de planta abierta
- Espacio esquinero
- Espacio que necesita una reforma
Full floor opportunity.
- Con capacidad para 38-120 personas
| Espacio | Tamaño | Duración | Precio | Uso | Distribución | Disponible |
| Planta 1, módulo 151 | 124 m² | Negociable | Bajo solicitud Bajo solicitud Bajo solicitud Bajo solicitud | Oficina/Local | Construcción total | Inmediata |
| Planta 1, módulo 170 | 101 m² | Negociable | Bajo solicitud Bajo solicitud Bajo solicitud Bajo solicitud | Oficina | Construcción parcial | Inmediata |
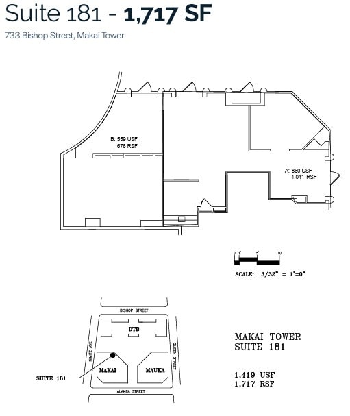
| Planta 1, módulo 181 | 97 m² | Negociable | Bajo solicitud Bajo solicitud Bajo solicitud Bajo solicitud | Oficina | Construcción parcial | Inmediata |
| Planta 11, módulo 1170 | 116 m² | Negociable | Bajo solicitud Bajo solicitud Bajo solicitud Bajo solicitud | Oficina | Construcción total | Inmediata |
| Planta 12, módulo 1270 | 260 m² | Negociable | Bajo solicitud Bajo solicitud Bajo solicitud Bajo solicitud | Oficina | Construcción total | Inmediata |
| Planta 12, módulo 1290 | 113 m² | Negociable | Bajo solicitud Bajo solicitud Bajo solicitud Bajo solicitud | Oficina | Construcción total | Inmediata |
| Planta 14, módulo 1430 | 263 m² | Negociable | Bajo solicitud Bajo solicitud Bajo solicitud Bajo solicitud | Oficina | Construcción total | Inmediata |
| Planta 15, módulo 1520 | 144 m² | Negociable | Bajo solicitud Bajo solicitud Bajo solicitud Bajo solicitud | Oficina | Construcción total | Inmediata |
| Planta 15, módulo 1565 | 80 m² | Negociable | Bajo solicitud Bajo solicitud Bajo solicitud Bajo solicitud | Oficina | Construcción total | Inmediata |
| Planta 17, módulo 1750 | 343-530 m² | Negociable | Bajo solicitud Bajo solicitud Bajo solicitud Bajo solicitud | Oficina | Construcción total | Inmediata |
| Planta 17, módulo 1770 | 187-530 m² | Negociable | Bajo solicitud Bajo solicitud Bajo solicitud Bajo solicitud | Oficina | Construcción total | 15/01/2026 |
| Planta 18, módulo 1872 | 133 m² | Negociable | Bajo solicitud Bajo solicitud Bajo solicitud Bajo solicitud | Oficina | Construcción total | Inmediata |
| Planta 20, módulo 2000 | 536 m² | Negociable | Bajo solicitud Bajo solicitud Bajo solicitud Bajo solicitud | Oficina | - | 01/08/2026 |
| Planta 21, módulo 2160 | 114 m² | Negociable | Bajo solicitud Bajo solicitud Bajo solicitud Bajo solicitud | Oficina | Construcción total | Inmediata |
| Planta 23, módulo 2300 | 139 m² | Negociable | Bajo solicitud Bajo solicitud Bajo solicitud Bajo solicitud | Oficina | Módulo especulativo | Inmediata |
| Planta 23, módulo 2301 | 625 m² | Negociable | Bajo solicitud Bajo solicitud Bajo solicitud Bajo solicitud | Oficina | - | 01/01/2026 |
| Planta 23, módulo 2357 | 268 m² | Negociable | Bajo solicitud Bajo solicitud Bajo solicitud Bajo solicitud | Oficina | Construcción total | Inmediata |
| Planta 23, módulo 2390 | 136 m² | Negociable | Bajo solicitud Bajo solicitud Bajo solicitud Bajo solicitud | Oficina | Construcción total | Inmediata |
| Planta 25, módulo 2555 | 97 m² | Negociable | Bajo solicitud Bajo solicitud Bajo solicitud Bajo solicitud | Oficina | Construcción total | Inmediata |
| Planta 25, módulo 2560 | 125 m² | Negociable | Bajo solicitud Bajo solicitud Bajo solicitud Bajo solicitud | Oficina | Construcción total | Inmediata |
| Planta 29, módulo 2945 | 125 m² | Negociable | Bajo solicitud Bajo solicitud Bajo solicitud Bajo solicitud | Oficina | Construcción total | Inmediata |
| Planta 29, módulo 2950 | 334 m² | Negociable | Bajo solicitud Bajo solicitud Bajo solicitud Bajo solicitud | Oficina | Espacio sin acabar | Inmediata |
| Planta 30, módulo 3000 | 1.393 m² | Negociable | Bajo solicitud Bajo solicitud Bajo solicitud Bajo solicitud | Oficina | - | 01/01/2027 |
733 Bishop St - Planta 1, módulo 151
733 Bishop St - Planta 1, módulo 170
733 Bishop St - Planta 1, módulo 181
733 Bishop St - Planta 11, módulo 1170
733 Bishop St - Planta 12, módulo 1270
733 Bishop St - Planta 12, módulo 1290
733 Bishop St - Planta 14, módulo 1430
733 Bishop St - Planta 15, módulo 1520
733 Bishop St - Planta 15, módulo 1565
733 Bishop St - Planta 17, módulo 1750
733 Bishop St - Planta 17, módulo 1770
733 Bishop St - Planta 18, módulo 1872
733 Bishop St - Planta 20, módulo 2000
733 Bishop St - Planta 21, módulo 2160
733 Bishop St - Planta 23, módulo 2300
733 Bishop St - Planta 23, módulo 2301
733 Bishop St - Planta 23, módulo 2357
733 Bishop St - Planta 23, módulo 2390
733 Bishop St - Planta 25, módulo 2555
733 Bishop St - Planta 25, módulo 2560
733 Bishop St - Planta 29, módulo 2945
733 Bishop St - Planta 29, módulo 2950
733 Bishop St - Planta 30, módulo 3000
- ESPACIO
- TAMAÑO
- DURACIÓN
- PRECIO
- USO
- DISTRIBUCIÓN
- DISPONIBILIDAD
Open office
- Construido totalmente como Oficina estándar
- Con capacidad para 1-3 personas
- Plano de planta abierta
- Espacio diáfano
Open layout. Available May 1, 2025
- Construido totalmente como Oficina estándar
- Con capacidad para 2-5 personas
- Plano de planta abierta
3 private offices, conference room, kitchenette, and open work area
- Construido totalmente como Oficina estándar
- 3 oficinas privadas
- Cocina
- Con capacidad para 8-26 personas
- 1 sala de conferencias
1 private office
- Construido totalmente como Oficina estándar
- 1 oficina privada
- Con capacidad para 2-4 personas
Reception area and a private office
- Plano de planta abierta
- 1 oficina privada
- Vista al patio
- Con capacidad para 1-3 personas
- Área de recepción
Open layout
- Construido totalmente como Oficina estándar
- Con capacidad para 2-4 personas
- Plano de planta abierta
1 private office with a sink
- Construido totalmente como Oficina estándar
- 1 oficina privada
- Con capacidad para 1-3 personas
Conference room, open work areas, and kitchnette
- Con capacidad para 6-17 personas
- 1 sala de conferencias
- Área de recepción
- Almacenamiento seguro
- 3 oficinas privadas
- 1 puesto de trabajo
- Cocina
- Luz natural
Open layout
- Construido totalmente como Oficina estándar
- Con capacidad para 5-14 personas
- Plano de planta abierta
1 private office
- Construido totalmente como Oficina estándar
- 1 oficina privada
- Área de recepción
- Con capacidad para 2-5 personas
- Espacio en excelentes condiciones
- Vistas al jardín
Large open area and 1 private office.
- Construido totalmente como Oficina estándar
- Con capacidad para 1-3 personas
- Plano de planta en su mayoría abierta
- 1 oficina privada
1 private office
- Construido totalmente como Oficina estándar
- Con capacidad para 2-6 personas
- Plano con mucho espacio para oficinas
- Construido totalmente como Oficina estándar
- Con capacidad para 2-6 personas
Available 3/1/26
- Con capacidad para 2-6 personas
| Espacio | Tamaño | Duración | Precio | Uso | Distribución | Disponible |
| Planta 2, módulo 215 | 29 m² | Negociable | Bajo solicitud Bajo solicitud Bajo solicitud Bajo solicitud | Oficina | Construcción total | Inmediata |
| Planta 2, módulo 226 | 49 m² | Negociable | Bajo solicitud Bajo solicitud Bajo solicitud Bajo solicitud | Oficina | Construcción total | Inmediata |
| Planta 2, módulo 230 | 295 m² | Negociable | Bajo solicitud Bajo solicitud Bajo solicitud Bajo solicitud | Oficina | Construcción total | Inmediata |
| Planta 2, módulo 233 | 46 m² | Negociable | Bajo solicitud Bajo solicitud Bajo solicitud Bajo solicitud | Oficina | Construcción total | Inmediata |
| Planta 2, módulo 237 | 28 m² | Negociable | Bajo solicitud Bajo solicitud Bajo solicitud Bajo solicitud | Oficina | Módulo especulativo | Inmediata |
| Planta 3, módulo 314 | 37 m² | Negociable | Bajo solicitud Bajo solicitud Bajo solicitud Bajo solicitud | Oficina | Construcción total | Inmediata |
| Planta 3, módulo 315 | 29 m² | Negociable | Bajo solicitud Bajo solicitud Bajo solicitud Bajo solicitud | Oficina | Construcción total | Inmediata |
| Planta 3, módulo 330 | 194 m² | Negociable | Bajo solicitud Bajo solicitud Bajo solicitud Bajo solicitud | Oficina | Módulo especulativo | Inmediata |
| Planta 3, módulo 333 | 155 m² | Negociable | Bajo solicitud Bajo solicitud Bajo solicitud Bajo solicitud | Oficina | Construcción total | Inmediata |
| Planta 3, módulo 336 | 50 m² | Negociable | Bajo solicitud Bajo solicitud Bajo solicitud Bajo solicitud | Oficina | Construcción total | Inmediata |
| Planta 4, módulo 415 | 29 m² | Negociable | Bajo solicitud Bajo solicitud Bajo solicitud Bajo solicitud | Oficina | Construcción total | Inmediata |
| Planta 4, módulo 432 | 59 m² | Negociable | Bajo solicitud Bajo solicitud Bajo solicitud Bajo solicitud | Oficina | Construcción total | Inmediata |
| Planta 4, módulo 437 | 67 m² | Negociable | Bajo solicitud Bajo solicitud Bajo solicitud Bajo solicitud | Oficina | Construcción total | 01/03/2026 |
| Planta 4, módulo 437 | 67 m² | Negociable | Bajo solicitud Bajo solicitud Bajo solicitud Bajo solicitud | Oficina | - | 01/03/2026 |
735 Bishop St - Planta 2, módulo 215
735 Bishop St - Planta 2, módulo 226
735 Bishop St - Planta 2, módulo 230
735 Bishop St - Planta 2, módulo 233
735 Bishop St - Planta 2, módulo 237
735 Bishop St - Planta 3, módulo 314
735 Bishop St - Planta 3, módulo 315
735 Bishop St - Planta 3, módulo 330
735 Bishop St - Planta 3, módulo 333
735 Bishop St - Planta 3, módulo 336
735 Bishop St - Planta 4, módulo 415
735 Bishop St - Planta 4, módulo 432
735 Bishop St - Planta 4, módulo 437
735 Bishop St - Planta 4, módulo 437
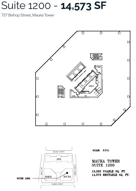
737 Bishop St - Planta 1, módulo 116
| Tamaño | 253 m² |
| Duración | Negociable |
| Precio | Bajo solicitud |
| Uso | Oficina |
| Distribución | Construcción total |
| Disponible | Inmediata |
Queen Street frontage with multiple private offices and kitchenette. High quality finishes
- El precio de alquiler no incluye ciertos gastos del inmueble
- Construido totalmente como Oficina de servicios profesionales
- Con capacidad para 7-22 personas
- 4 oficinas privadas
- 1 sala de conferencias
- 1 puesto de trabajo
- Espacio en excelentes condiciones
- Cocina
- Almacenamiento seguro
- Fachada de Queen Street
- Entrada para el personal del lobby de la Torre Mauka para facilitar el acceso
737 Bishop St - Planta 11, módulo 1100
| Tamaño | 1.367 m² |
| Duración | Negociable |
| Precio | Bajo solicitud |
| Uso | Oficina |
| Distribución | Construcción parcial |
| Disponible | Inmediata |
Full floor availability with perimeter of offices, kitchen, reception area, conference room and open space
- Construido parcialmente como Oficina estándar
- Plano de planta abierta
- Con capacidad para 37-118 personas
- 1 sala de conferencias
- Espacio en excelentes condiciones
- Se puede combinar con otros inmuebles hasta un total de 2.721 m² de espacio adyacente
- Área de recepción
- Cocina
737 Bishop St - Planta 12, módulo 1200
| Tamaño | 1.354 m² |
| Duración | Negociable |
| Precio | Bajo solicitud |
| Uso | Oficina |
| Distribución | Construcción parcial |
| Disponible | Inmediata |
Full floor availability ready for space plan
- Construido parcialmente como Oficina estándar
- Plano de planta abierta
- Con capacidad para 37-117 personas
- Se puede combinar con otros inmuebles hasta un total de 2.721 m² de espacio adyacente
737 Bishop St - Planta 14, módulo 1400
| Tamaño | 323 m² |
| Duración | Negociable |
| Precio | Bajo solicitud |
| Uso | Oficina |
| Distribución | Construcción total |
| Disponible | Inmediata |
Multiple offices with open area and available water
- Construido totalmente como Oficina estándar
- Plano con mucho espacio para oficinas
- Con capacidad para 9-85 personas
- Se puede combinar con otros inmuebles hasta un total de 984 m² de espacio adyacente
737 Bishop St - Planta 14, módulo 1420
| Tamaño | 157 m² |
| Duración | Negociable |
| Precio | Bajo solicitud |
| Uso | Oficina |
| Distribución | Construcción total |
| Disponible | Inmediata |
4 offices, conference room, and open space
- Construido totalmente como Oficina estándar
- Con capacidad para 5-85 personas
- 4 oficinas privadas
- 1 sala de conferencias
- Se puede combinar con otros inmuebles hasta un total de 984 m² de espacio adyacente
737 Bishop St - Planta 14, módulo 1430
| Tamaño | 257 m² |
| Duración | Negociable |
| Precio | Bajo solicitud |
| Uso | Oficina |
| Distribución | Construcción total |
| Disponible | Inmediata |
7 offices, reception area, conference room, and kitchen
- Construido totalmente como Oficina estándar
- Con capacidad para 7-85 personas
- 7 oficinas privadas
- Se puede combinar con otros inmuebles hasta un total de 984 m² de espacio adyacente
- Área de recepción
- Cocina
737 Bishop St - Planta 14, módulo 1480
| Tamaño | 248 m² |
| Duración | Negociable |
| Precio | Bajo solicitud |
| Uso | Oficina |
| Distribución | Construcción total |
| Disponible | Inmediata |
Open layout
- Construido totalmente como Oficina estándar
- Plano de planta abierta
- Con capacidad para 7-85 personas
- Se puede combinar con otros inmuebles hasta un total de 984 m² de espacio adyacente
- Espacio diáfano
737 Bishop St - Planta 15, módulo 1590
| Tamaño | 682 m² |
| Duración | Negociable |
| Precio | Bajo solicitud |
| Uso | Oficina |
| Distribución | - |
| Disponible | 01/06/2026 |
Multiple private offices, conference room, kitchenette.
- Con capacidad para 19-59 personas
737 Bishop St - Planta 16, módulo 1655
| Tamaño | 256 m² |
| Duración | Negociable |
| Precio | Bajo solicitud |
| Uso | Oficina |
| Distribución | Construcción total |
| Disponible | Inmediata |
1 private office, open space, and kitchen
- Construido totalmente como Oficina estándar
- Con capacidad para 7-23 personas
- 1 oficina privada
- Cocina
737 Bishop St - Planta 18, módulo 1860
| Tamaño | 114 m² |
| Duración | Negociable |
| Precio | Bajo solicitud |
| Uso | Oficina |
| Distribución | - |
| Disponible | 15/01/2026 |
4 windowed private office.
- Con capacidad para 4-10 personas
737 Bishop St - Planta 18, módulo 1880
| Tamaño | 286 m² |
| Duración | Negociable |
| Precio | Bajo solicitud |
| Uso | Oficina |
| Distribución | Construcción total |
| Disponible | Inmediata |
1 private office, open space and water
- Construido totalmente como Oficina estándar
- Plano de planta en su mayoría abierta
- Con capacidad para 8-25 personas
- 1 oficina privada
- Espacio diáfano
737 Bishop St - Planta 19, módulo 1960
| Tamaño | 216 m² |
| Duración | Negociable |
| Precio | Bajo solicitud |
| Uso | Oficina |
| Distribución | Construcción parcial |
| Disponible | Inmediata |
Open layout.
- Construido parcialmente como Oficina estándar
- Plano de planta abierta
- Con capacidad para 6-19 personas
- Espacio diáfano
737 Bishop St - Planta 21, módulo 2115
| Tamaño | 365 m² |
| Duración | Negociable |
| Precio | Bajo solicitud |
| Uso | Oficina |
| Distribución | Construcción total |
| Disponible | Inmediata |
7 private offices
- Construido totalmente como Oficina estándar
- Plano de planta en su mayoría abierta
- Con capacidad para 9-32 personas
- 7 oficinas privadas
- 1 sala de conferencias
- 25 puestos de trabajo
- Listo para usar
- Cocina
737 Bishop St - Planta 23, módulo 2340
| Tamaño | 490 m² |
| Duración | Negociable |
| Precio | Bajo solicitud |
| Uso | Oficina |
| Distribución | Construcción total |
| Disponible | Inmediata |
Former law office with multiple private offices and conference rooms.
- Construido totalmente como Despacho de abogados
- Plano con mucho espacio para oficinas
- Con capacidad para 14-43 personas
737 Bishop St - Planta 23, módulo 2390
| Tamaño | 479 m² |
| Duración | Negociable |
| Precio | Bajo solicitud |
| Uso | Oficina |
| Distribución | Espacio sin acabar |
| Disponible | Inmediata |
Shell space
- Plano de planta abierta
737 Bishop St - Planta 24, módulo 2400
| Tamaño | 902 m² |
| Duración | Negociable |
| Precio | Bajo solicitud |
| Uso | Oficina |
| Distribución | Construcción parcial |
| Disponible | Inmediata |
Former law office with dense window line office build out.
- Construido parcialmente como Oficina estándar
- Plano de planta en su mayoría abierta
- Con capacidad para 25-78 personas
- Salas de conferencias
- Área de recepción
737 Bishop St - Planta 27, módulo 2790
| Tamaño | 119 m² |
| Duración | Negociable |
| Precio | Bajo solicitud |
| Uso | Oficina |
| Distribución | Construcción total |
| Disponible | Inmediata |
2 private window offices, interior conference room, and storage.
- Construido totalmente como Oficina estándar
- Con capacidad para 4-11 personas
- 2 oficinas privadas
- Salas de conferencias
- Storage
733 Bishop St - Planta 1, módulo 151
| Tamaño | 124 m² |
| Duración | Negociable |
| Precio | Bajo solicitud |
| Uso | Oficina/Local |
| Distribución | Construcción total |
| Disponible | Inmediata |
Ground floor space with courtyard frontage. 2 private office and open area.
- Construido totalmente como Oficina estándar
- Con capacidad para 4-11 personas
- 2 oficinas privadas
733 Bishop St - Planta 1, módulo 170
| Tamaño | 101 m² |
| Duración | Negociable |
| Precio | Bajo solicitud |
| Uso | Oficina |
| Distribución | Construcción parcial |
| Disponible | Inmediata |
Nimitz/Alakea frontage. 1 private office and kitchenette
- Construido parcialmente como Oficina estándar
- Plano de planta en su mayoría abierta
- Con capacidad para 3-9 personas
- 1 oficina privada
- Cocina
733 Bishop St - Planta 1, módulo 181
| Tamaño | 97 m² |
| Duración | Negociable |
| Precio | Bajo solicitud |
| Uso | Oficina |
| Distribución | Construcción parcial |
| Disponible | Inmediata |
Courtyard entrance and includes water
- Construido parcialmente como Oficina estándar
- Plano de planta abierta
- Con capacidad para 3-9 personas
- 1 sala de conferencias
- Techos acabados: 2,90 metros
- Espacio que necesita una reforma
- Área de recepción
733 Bishop St - Planta 11, módulo 1170
| Tamaño | 116 m² |
| Duración | Negociable |
| Precio | Bajo solicitud |
| Uso | Oficina |
| Distribución | Construcción total |
| Disponible | Inmediata |
3 private offices with a large conference room
- Construido totalmente como Oficina estándar
- Con capacidad para 4-10 personas
- 3 oficinas privadas
- 1 sala de conferencias
733 Bishop St - Planta 12, módulo 1270
| Tamaño | 260 m² |
| Duración | Negociable |
| Precio | Bajo solicitud |
| Uso | Oficina |
| Distribución | Construcción total |
| Disponible | Inmediata |
3 private offices, 2 large conference rooms, kitchenette.
- Construido totalmente como Oficina estándar
- Con capacidad para 7-23 personas
- 3 oficinas privadas
- 2 salas de conferencias
- Cocina
733 Bishop St - Planta 12, módulo 1290
| Tamaño | 113 m² |
| Duración | Negociable |
| Precio | Bajo solicitud |
| Uso | Oficina |
| Distribución | Construcción total |
| Disponible | Inmediata |
3 large private offices and open area.
- Construido totalmente como Oficina estándar
- Con capacidad para 4-10 personas
- 3 oficinas privadas
733 Bishop St - Planta 14, módulo 1430
| Tamaño | 263 m² |
| Duración | Negociable |
| Precio | Bajo solicitud |
| Uso | Oficina |
| Distribución | Construcción total |
| Disponible | Inmediata |
Open layout
- Construido totalmente como Oficina estándar
- Plano de planta abierta
- Con capacidad para 8-23 personas
- Espacio diáfano
733 Bishop St - Planta 15, módulo 1520
| Tamaño | 144 m² |
| Duración | Negociable |
| Precio | Bajo solicitud |
| Uso | Oficina |
| Distribución | Construcción total |
| Disponible | Inmediata |
3 private offices
- Construido totalmente como Oficina estándar
- Con capacidad para 4-13 personas
- 3 oficinas privadas
733 Bishop St - Planta 15, módulo 1565
| Tamaño | 80 m² |
| Duración | Negociable |
| Precio | Bajo solicitud |
| Uso | Oficina |
| Distribución | Construcción total |
| Disponible | Inmediata |
Open layout
- Construido totalmente como Oficina estándar
- Plano de planta abierta
- Con capacidad para 3-7 personas
733 Bishop St - Planta 17, módulo 1750
| Tamaño | 343-530 m² |
| Duración | Negociable |
| Precio | Bajo solicitud |
| Uso | Oficina |
| Distribución | Construcción total |
| Disponible | Inmediata |
Open layout
- Construido totalmente como Oficina estándar
- Plano de planta abierta
- Con capacidad para 10-46 personas
733 Bishop St - Planta 17, módulo 1770
| Tamaño | 187-530 m² |
| Duración | Negociable |
| Precio | Bajo solicitud |
| Uso | Oficina |
| Distribución | Construcción total |
| Disponible | 15/01/2026 |
5 window line offices and 2 interior offices.
- Construido totalmente como Oficina estándar
- Con capacidad para 6-46 personas
- 7 oficinas privadas
- Luz natural
733 Bishop St - Planta 18, módulo 1872
| Tamaño | 133 m² |
| Duración | Negociable |
| Precio | Bajo solicitud |
| Uso | Oficina |
| Distribución | Construcción total |
| Disponible | Inmediata |
3 window offices and 2 interior offices.
- Construido totalmente como Oficina estándar
- Con capacidad para 4-12 personas
- 5 oficinas privadas
- Luz natural
733 Bishop St - Planta 20, módulo 2000
| Tamaño | 536 m² |
| Duración | Negociable |
| Precio | Bajo solicitud |
| Uso | Oficina |
| Distribución | - |
| Disponible | 01/08/2026 |
Private offices, conference rooms, kitchenette with excellent views. Turn key opportunity with furniture included
- Con capacidad para 15-47 personas
733 Bishop St - Planta 21, módulo 2160
| Tamaño | 114 m² |
| Duración | Negociable |
| Precio | Bajo solicitud |
| Uso | Oficina |
| Distribución | Construcción total |
| Disponible | Inmediata |
3 private offices and kitchenette
- Construido totalmente como Oficina estándar
- Con capacidad para 4-10 personas
- 3 oficinas privadas
733 Bishop St - Planta 23, módulo 2300
| Tamaño | 139 m² |
| Duración | Negociable |
| Precio | Bajo solicitud |
| Uso | Oficina |
| Distribución | Módulo especulativo |
| Disponible | Inmediata |
Upgraded suite with ocean front view, 2 private offices, new paint, carpet and LED lights, and kitchenette
- Plano de planta en su mayoría abierta
- Con capacidad para 4-12 personas
- 2 oficinas privadas
- Espacio en excelentes condiciones
- Cocina
733 Bishop St - Planta 23, módulo 2301
| Tamaño | 625 m² |
| Duración | Negociable |
| Precio | Bajo solicitud |
| Uso | Oficina |
| Distribución | - |
| Disponible | 01/01/2026 |
Multiple private offices, conference room, and kitchenette with excellent views.
- Con capacidad para 17-54 personas
733 Bishop St - Planta 23, módulo 2357
| Tamaño | 268 m² |
| Duración | Negociable |
| Precio | Bajo solicitud |
| Uso | Oficina |
| Distribución | Construcción total |
| Disponible | Inmediata |
6 private offices, conference room, and storage room.
- Construido totalmente como Oficina estándar
- Con capacidad para 8-24 personas
- 6 oficinas privadas
- 1 sala de conferencias
733 Bishop St - Planta 23, módulo 2390
| Tamaño | 136 m² |
| Duración | Negociable |
| Precio | Bajo solicitud |
| Uso | Oficina |
| Distribución | Construcción total |
| Disponible | Inmediata |
5 private offices, kitchen, conference room, and open space
- Construido totalmente como Oficina estándar
- Con capacidad para 4-12 personas
- 5 oficinas privadas
- Salas de conferencias
- Cocina
733 Bishop St - Planta 25, módulo 2555
| Tamaño | 97 m² |
| Duración | Negociable |
| Precio | Bajo solicitud |
| Uso | Oficina |
| Distribución | Construcción total |
| Disponible | Inmediata |
3 offices and open area
- Construido totalmente como Oficina estándar
- Con capacidad para 3-9 personas
- 3 oficinas privadas
733 Bishop St - Planta 25, módulo 2560
| Tamaño | 125 m² |
| Duración | Negociable |
| Precio | Bajo solicitud |
| Uso | Oficina |
| Distribución | Construcción total |
| Disponible | Inmediata |
Open layout
- Construido totalmente como Oficina estándar
- Plano de planta abierta
- Con capacidad para 4-11 personas
- Espacio en excelentes condiciones
- Espacio diáfano
733 Bishop St - Planta 29, módulo 2945
| Tamaño | 125 m² |
| Duración | Negociable |
| Precio | Bajo solicitud |
| Uso | Oficina |
| Distribución | Construcción total |
| Disponible | Inmediata |
1 private office and an open layout.
- Construido totalmente como Oficina estándar
- Plano de planta en su mayoría abierta
- Con capacidad para 4-11 personas
- 1 oficina privada
- Espacio diáfano
733 Bishop St - Planta 29, módulo 2950
| Tamaño | 334 m² |
| Duración | Negociable |
| Precio | Bajo solicitud |
| Uso | Oficina |
| Distribución | Espacio sin acabar |
| Disponible | Inmediata |
High floor, Corner unit, open area with new ceiling and lights
- Plano de planta abierta
- Espacio que necesita una reforma
- Espacio esquinero
733 Bishop St - Planta 30, módulo 3000
| Tamaño | 1.393 m² |
| Duración | Negociable |
| Precio | Bajo solicitud |
| Uso | Oficina |
| Distribución | - |
| Disponible | 01/01/2027 |
Full floor opportunity.
- Con capacidad para 38-120 personas
735 Bishop St - Planta 2, módulo 215
| Tamaño | 29 m² |
| Duración | Negociable |
| Precio | Bajo solicitud |
| Uso | Oficina |
| Distribución | Construcción total |
| Disponible | Inmediata |
Open office
- Construido totalmente como Oficina estándar
- Plano de planta abierta
- Con capacidad para 1-3 personas
- Espacio diáfano
735 Bishop St - Planta 2, módulo 226
| Tamaño | 49 m² |
| Duración | Negociable |
| Precio | Bajo solicitud |
| Uso | Oficina |
| Distribución | Construcción total |
| Disponible | Inmediata |
Open layout. Available May 1, 2025
- Construido totalmente como Oficina estándar
- Plano de planta abierta
- Con capacidad para 2-5 personas
735 Bishop St - Planta 2, módulo 230
| Tamaño | 295 m² |
| Duración | Negociable |
| Precio | Bajo solicitud |
| Uso | Oficina |
| Distribución | Construcción total |
| Disponible | Inmediata |
3 private offices, conference room, kitchenette, and open work area
- Construido totalmente como Oficina estándar
- Con capacidad para 8-26 personas
- 3 oficinas privadas
- 1 sala de conferencias
- Cocina
735 Bishop St - Planta 2, módulo 233
| Tamaño | 46 m² |
| Duración | Negociable |
| Precio | Bajo solicitud |
| Uso | Oficina |
| Distribución | Construcción total |
| Disponible | Inmediata |
1 private office
- Construido totalmente como Oficina estándar
- Con capacidad para 2-4 personas
- 1 oficina privada
735 Bishop St - Planta 2, módulo 237
| Tamaño | 28 m² |
| Duración | Negociable |
| Precio | Bajo solicitud |
| Uso | Oficina |
| Distribución | Módulo especulativo |
| Disponible | Inmediata |
Reception area and a private office
- Plano de planta abierta
- Con capacidad para 1-3 personas
- 1 oficina privada
- Área de recepción
- Vista al patio
735 Bishop St - Planta 3, módulo 314
| Tamaño | 37 m² |
| Duración | Negociable |
| Precio | Bajo solicitud |
| Uso | Oficina |
| Distribución | Construcción total |
| Disponible | Inmediata |
Open layout
- Construido totalmente como Oficina estándar
- Plano de planta abierta
- Con capacidad para 2-4 personas
735 Bishop St - Planta 3, módulo 315
| Tamaño | 29 m² |
| Duración | Negociable |
| Precio | Bajo solicitud |
| Uso | Oficina |
| Distribución | Construcción total |
| Disponible | Inmediata |
1 private office with a sink
- Construido totalmente como Oficina estándar
- Con capacidad para 1-3 personas
- 1 oficina privada
735 Bishop St - Planta 3, módulo 330
| Tamaño | 194 m² |
| Duración | Negociable |
| Precio | Bajo solicitud |
| Uso | Oficina |
| Distribución | Módulo especulativo |
| Disponible | Inmediata |
Conference room, open work areas, and kitchnette
- Con capacidad para 6-17 personas
- 3 oficinas privadas
- 1 sala de conferencias
- 1 puesto de trabajo
- Área de recepción
- Cocina
- Almacenamiento seguro
- Luz natural
735 Bishop St - Planta 3, módulo 333
| Tamaño | 155 m² |
| Duración | Negociable |
| Precio | Bajo solicitud |
| Uso | Oficina |
| Distribución | Construcción total |
| Disponible | Inmediata |
Open layout
- Construido totalmente como Oficina estándar
- Plano de planta abierta
- Con capacidad para 5-14 personas
735 Bishop St - Planta 3, módulo 336
| Tamaño | 50 m² |
| Duración | Negociable |
| Precio | Bajo solicitud |
| Uso | Oficina |
| Distribución | Construcción total |
| Disponible | Inmediata |
1 private office
- Construido totalmente como Oficina estándar
- Con capacidad para 2-5 personas
- 1 oficina privada
- Espacio en excelentes condiciones
- Área de recepción
- Vistas al jardín
735 Bishop St - Planta 4, módulo 415
| Tamaño | 29 m² |
| Duración | Negociable |
| Precio | Bajo solicitud |
| Uso | Oficina |
| Distribución | Construcción total |
| Disponible | Inmediata |
Large open area and 1 private office.
- Construido totalmente como Oficina estándar
- Plano de planta en su mayoría abierta
- Con capacidad para 1-3 personas
- 1 oficina privada
735 Bishop St - Planta 4, módulo 432
| Tamaño | 59 m² |
| Duración | Negociable |
| Precio | Bajo solicitud |
| Uso | Oficina |
| Distribución | Construcción total |
| Disponible | Inmediata |
1 private office
- Construido totalmente como Oficina estándar
- Plano con mucho espacio para oficinas
- Con capacidad para 2-6 personas
735 Bishop St - Planta 4, módulo 437
| Tamaño | 67 m² |
| Duración | Negociable |
| Precio | Bajo solicitud |
| Uso | Oficina |
| Distribución | Construcción total |
| Disponible | 01/03/2026 |
- Construido totalmente como Oficina estándar
- Con capacidad para 2-6 personas
735 Bishop St - Planta 4, módulo 437
| Tamaño | 67 m² |
| Duración | Negociable |
| Precio | Bajo solicitud |
| Uso | Oficina |
| Distribución | - |
| Disponible | 01/03/2026 |
Available 3/1/26
- Con capacidad para 2-6 personas
MATTERPORT TOURS (Tours virtuales en 3D)
PRINCIPALES INQUILINOS EN ESTE INMUEBLE
- PLANTA
- NOMBRE DEL INQUILINO
- SECTOR
- 31
- Architects Hawaii Ltd
- Servicios técnicos, científicos y profesionales
- 26
- Case Lombardi & Pettit A Law Corporation
- Servicios
- Varios
- Morgan Stanley
- Finanzas y seguros
- 19
- Spirent Communications
- Información
- 19
- Starn O’Toole Marcus & Fisher Law
- Servicios
- 16
- UBS Financial Services
- Finanzas y seguros
RESUMEN DEL PARQUE
El Pacific Guardian Center, un galardonado complejo de oficinas de 682,000 pies cuadrados compuesto por tres edificios, brinda a las firmas de Honolulu una dirección comercial distintiva. La Torre Makai y la Torre Mauka son torres gemelas de oficinas de vidrio espejado de 30 pisos de altura que enfatizan su prominencia como ubicación estratégica en el distrito financiero del centro de Honolulú. Al mismo tiempo, el histórico edificio de transporte de Dillingham, situado al lado, refleja su resistencia y estabilidad. El Pacific Guardian Center ofrece un entorno profesional de alta calidad, con una plaza con hermosos jardines y patios abiertos, un estacionamiento de 786 puestos, sistemas avanzados de climatización, sistemas de automatización de edificios, sistemas de seguridad personal y un amplio personal para que todo funcione sin problemas. Además, el edificio cuenta con las certificaciones Energy Star y LEED Gold en materia de eficiencia energética. El Pacific Guardian Center está convenientemente ubicado en el distrito central de negocios, con fácil acceso a las oficinas gubernamentales federales, estatales y del condado y a los tribunales, lo que lo convierte en el lugar ideal para hacer negocios en Honolulu.
- Servicios bancarios
- Línea de autobús
- Centro de conferencias
- Chaflán (hace esquina)
- Patio
- Property manager in situ
- Restaurante
- Almacén/trastero
- Estación de carga de coches
- Aire acondicionado
Elaborado por
Pacific Guardian Center | Honolulu, HI 96813
Parece que se ha producido un error al enviar tu mensaje. Vuelve a intentarlo.
Gracias. Se ha enviado tu mensaje.


















































































