Tu correo electrónico ha sido enviado.



Parte de la información se ha traducido automáticamente.
ASPECTOS DESTACADOS
- Propiedad industrial multiarrendataria
- Puertas de envío a nivel de muelle
- Alturas despejadas de 18 pies
- Cerca de todos los servicios y transporte público
CARACTERÍSTICAS
ESPACIOS DISPONIBLES(2)
Mostrar el precio como
- ESPACIO
- TAMAÑO
- DURACIÓN
- PRECIO
- USO
- DISTRIBUCIÓN
- DISPONIBILIDAD
- El precio de alquiler no incluye los servicios básicos, los gastos del inmueble ni los del edificio
- 1 muelle de carga
- Se puede combinar con otros inmuebles hasta un total de 694 m² de espacio adyacente
Ideal location for a small business requiring office space and dock level shipping. The space has 3 washrooms and a kitchen area. Easy access to Highways and public transportation. One block from Fairview Shopping Mall. Large parking area. Located in the heart of the Pointe-Claire Industrial Park. This offering does not constitute a promise or offer to sell or lease that could bind the property owner, but an invitation to submit such a promise or an offer. The information contained herein has been obtained from sources deemed reliable, interested parties should complete a due diligence inspection. This information may change and the property may be withdrawn from the market without notice.
- Incluye 71 m² de espacio exclusivo para oficinas
- Se puede combinar con otros inmuebles hasta un total de 694 m² de espacio adyacente
- Calefacción central
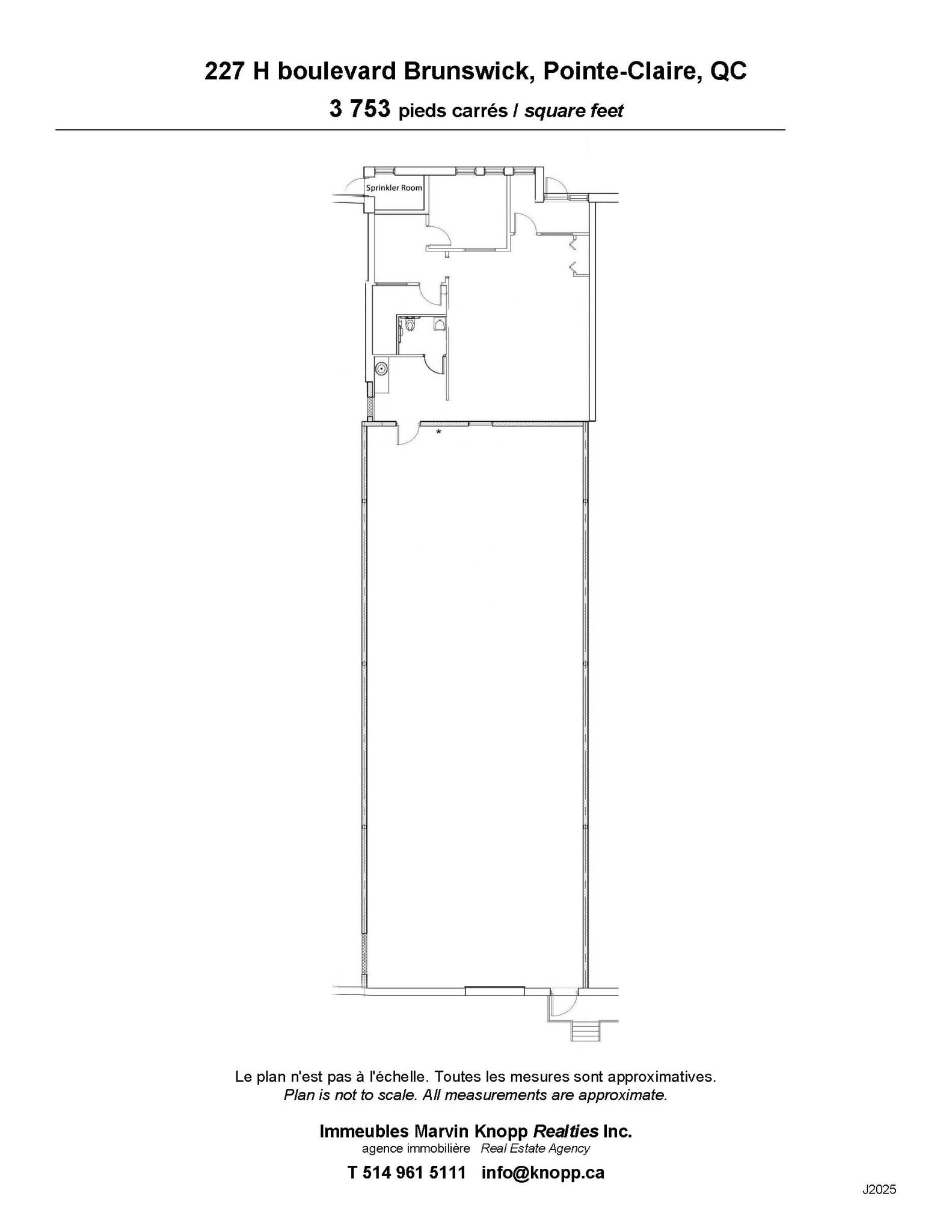
- 760 pies cuadrados de espacio para oficinas
- 1 puerta de envío a nivel de muelle
- Espacio en excelentes condiciones
- 1 muelle de carga
- Luz natural
- 3 baños y un área de cocina
- Espacio luminoso con muchas ventanas
| Espacio | Tamaño | Duración | Precio | Uso | Distribución | Disponible |
| Planta 1 - H | 349 m² | Negociable | Bajo solicitud Bajo solicitud Bajo solicitud Bajo solicitud | Nave | - | 01/05/2026 |
| Planta 1 - K | 345 m² | 1-10 Años | Bajo solicitud Bajo solicitud Bajo solicitud Bajo solicitud | Nave | Construcción parcial | Inmediata |
Planta 1 - H
| Tamaño |
| 349 m² |
| Duración |
| Negociable |
| Precio |
| Bajo solicitud Bajo solicitud Bajo solicitud Bajo solicitud |
| Uso |
| Nave |
| Distribución |
| - |
| Disponible |
| 01/05/2026 |
Planta 1 - K
| Tamaño |
| 345 m² |
| Duración |
| 1-10 Años |
| Precio |
| Bajo solicitud Bajo solicitud Bajo solicitud Bajo solicitud |
| Uso |
| Nave |
| Distribución |
| Construcción parcial |
| Disponible |
| Inmediata |
Planta 1 - H
| Tamaño | 349 m² |
| Duración | Negociable |
| Precio | Bajo solicitud |
| Uso | Nave |
| Distribución | - |
| Disponible | 01/05/2026 |
- El precio de alquiler no incluye los servicios básicos, los gastos del inmueble ni los del edificio
- Se puede combinar con otros inmuebles hasta un total de 694 m² de espacio adyacente
- 1 muelle de carga
Planta 1 - K
| Tamaño | 345 m² |
| Duración | 1-10 Años |
| Precio | Bajo solicitud |
| Uso | Nave |
| Distribución | Construcción parcial |
| Disponible | Inmediata |
Ideal location for a small business requiring office space and dock level shipping. The space has 3 washrooms and a kitchen area. Easy access to Highways and public transportation. One block from Fairview Shopping Mall. Large parking area. Located in the heart of the Pointe-Claire Industrial Park. This offering does not constitute a promise or offer to sell or lease that could bind the property owner, but an invitation to submit such a promise or an offer. The information contained herein has been obtained from sources deemed reliable, interested parties should complete a due diligence inspection. This information may change and the property may be withdrawn from the market without notice.
- Incluye 71 m² de espacio exclusivo para oficinas
- Espacio en excelentes condiciones
- Se puede combinar con otros inmuebles hasta un total de 694 m² de espacio adyacente
- 1 muelle de carga
- Calefacción central
- Luz natural
- 760 pies cuadrados de espacio para oficinas
- 3 baños y un área de cocina
- 1 puerta de envío a nivel de muelle
- Espacio luminoso con muchas ventanas
DESCRIPCIÓN GENERAL DEL INMUEBLE
Ubicación ideal para una pequeña empresa que requiere espacio de oficina y envíos a nivel de muelle. Fácil acceso a las autopistas y al transporte público. A una cuadra del centro comercial Fairview. Amplia área de estacionamiento. Ubicado en el corazón del Parque Industrial Pointe-Claire.
INFORMACIÓN DEL EDIFICIO: ALMACÉN
Elaborado por
227 Boul Brunswick
Parece que se ha producido un error al enviar tu mensaje. Vuelve a intentarlo.
Gracias. Se ha enviado tu mensaje.






