Tu correo electrónico ha sido enviado.



Parte de la información se ha traducido automáticamente.
ASPECTOS DESTACADOS
- Plan abierto
- Ubicación central
- Planta baja de 11 pies de altura de techo
- Cerca del transporte público, tiendas y restaurantes
- Espacio de oficina/sala de exposición de 2 pisos
- Segundo piso de 9 pies de altura de techo
CARACTERÍSTICAS
ESPACIOS DISPONIBLES(3)
Mostrar el precio como
- ESPACIO
- TAMAÑO
- DURACIÓN
- PRECIO
- USO
- DISTRIBUCIÓN
- DISPONIBILIDAD
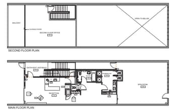
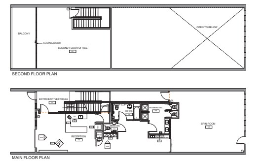
The property is situated mid-block on the south side of West 6th Avenue with direct access to Downtown Vancouver, the Broadway Corridor, transit, bike paths, major arterials and future Broadway SkyTrain Station. The location opportunity is an extensively renovated (2020) two-storey building with ground floor and second floor fitness space along with a 200 square foot balcony. The building faces West 6th Avenue with upwards of four parking stalls immediately in front and in addition to abundant street parking. Improvements include new mechanical, electrical & seismic upgrades, street level loading bay door, washrooms, and an activity studi
- El precio de alquiler no incluye los servicios básicos, los gastos del inmueble ni los del edificio
- Ubicado en línea con otros locales
- Construido totalmente como Espacio comercial estándar
The property is situated mid-block on the south side of West 6th Avenue with direct access to Downtown Vancouver, the Broadway Corridor, transit, bike paths, major arterials and future Broadway SkyTrain Station. The location opportunity is an extensively renovated (2020) two-storey building with ground floor and second floor fitness space along with a 200 square foot balcony. The building faces West 6th Avenue with upwards of four parking stalls immediately in front and in addition to abundant street parking. Improvements include new mechanical, electrical & seismic upgrades, street level loading bay door, washrooms, and an activity studio.
- El precio de alquiler no incluye los servicios básicos, los gastos del inmueble ni los del edificio
- Ubicado en línea con otros locales
The property is situated mid-block on the south side of West 6th Avenue with direct access to Downtown Vancouver, the Broadway Corridor, transit, bike paths, major arterials and future Broadway SkyTrain Station. The area known as Burrard Slopes has evolved into a destination for coffee houses, restaurants, cafés, interior designers, home décor showrooms, architects, galleries, technology users, specialty retail and luxury automotive dealers. The location opportunity is a two-storey building ideal for ground floor retail/office or warehouse/showroom uses with second floor office space. The building faces West 6th Avenue and the Arbutus Greenway with dedicated driveway parking in addition to ample street parking. Improvements include a grade level loading bay door and high ceilings throughout the ground floor.
- El precio de alquiler no incluye los servicios básicos, los gastos del inmueble ni los del edificio
- Planta baja con una altura de techo de 11 pies
- Servicio eléctrico de 200 amperios
- Puerta de carga nivelada: altura libre de 8 pies
- Espacio de oficina/sala de exposición de 2 plantas
- Segundo piso con una altura de techo de 9 pies
- Nuevo HVAC
| Espacio | Tamaño | Duración | Precio | Uso | Distribución | Disponible |
| Planta 1 | 193 m² | Negociable | 312,58 € /m²/año 26,05 € /m²/mes 60.258 € /año 5.021 € /mes | Local | Construcción total | Inmediata |
| Planta 2 | 60 m² | Negociable | 166,27 € /m²/año 13,86 € /m²/mes 10.040 € /año 836,70 € /mes | Local | Espacio sin acabar | Inmediata |
| Planta 2 - 1638 | 194 m² | Negociable | 166,27 € /m²/año 13,86 € /m²/mes 32.330 € /año 2.694 € /mes | Flex | Construcción parcial | Inmediata |
Planta 1
| Tamaño |
| 193 m² |
| Duración |
| Negociable |
| Precio |
| 312,58 € /m²/año 26,05 € /m²/mes 60.258 € /año 5.021 € /mes |
| Uso |
| Local |
| Distribución |
| Construcción total |
| Disponible |
| Inmediata |
Planta 2
| Tamaño |
| 60 m² |
| Duración |
| Negociable |
| Precio |
| 166,27 € /m²/año 13,86 € /m²/mes 10.040 € /año 836,70 € /mes |
| Uso |
| Local |
| Distribución |
| Espacio sin acabar |
| Disponible |
| Inmediata |
Planta 2 - 1638
| Tamaño |
| 194 m² |
| Duración |
| Negociable |
| Precio |
| 166,27 € /m²/año 13,86 € /m²/mes 32.330 € /año 2.694 € /mes |
| Uso |
| Flex |
| Distribución |
| Construcción parcial |
| Disponible |
| Inmediata |
Planta 1
| Tamaño | 193 m² |
| Duración | Negociable |
| Precio | 5.021 € /mes |
| Uso | Local |
| Distribución | Construcción total |
| Disponible | Inmediata |
The property is situated mid-block on the south side of West 6th Avenue with direct access to Downtown Vancouver, the Broadway Corridor, transit, bike paths, major arterials and future Broadway SkyTrain Station. The location opportunity is an extensively renovated (2020) two-storey building with ground floor and second floor fitness space along with a 200 square foot balcony. The building faces West 6th Avenue with upwards of four parking stalls immediately in front and in addition to abundant street parking. Improvements include new mechanical, electrical & seismic upgrades, street level loading bay door, washrooms, and an activity studi
- El precio de alquiler no incluye los servicios básicos, los gastos del inmueble ni los del edificio
- Construido totalmente como Espacio comercial estándar
- Ubicado en línea con otros locales
Planta 2
| Tamaño | 60 m² |
| Duración | Negociable |
| Precio | 836,70 € /mes |
| Uso | Local |
| Distribución | Espacio sin acabar |
| Disponible | Inmediata |
The property is situated mid-block on the south side of West 6th Avenue with direct access to Downtown Vancouver, the Broadway Corridor, transit, bike paths, major arterials and future Broadway SkyTrain Station. The location opportunity is an extensively renovated (2020) two-storey building with ground floor and second floor fitness space along with a 200 square foot balcony. The building faces West 6th Avenue with upwards of four parking stalls immediately in front and in addition to abundant street parking. Improvements include new mechanical, electrical & seismic upgrades, street level loading bay door, washrooms, and an activity studio.
- El precio de alquiler no incluye los servicios básicos, los gastos del inmueble ni los del edificio
- Ubicado en línea con otros locales
Planta 2 - 1638
| Tamaño | 194 m² |
| Duración | Negociable |
| Precio | 2.694 € /mes |
| Uso | Flex |
| Distribución | Construcción parcial |
| Disponible | Inmediata |
The property is situated mid-block on the south side of West 6th Avenue with direct access to Downtown Vancouver, the Broadway Corridor, transit, bike paths, major arterials and future Broadway SkyTrain Station. The area known as Burrard Slopes has evolved into a destination for coffee houses, restaurants, cafés, interior designers, home décor showrooms, architects, galleries, technology users, specialty retail and luxury automotive dealers. The location opportunity is a two-storey building ideal for ground floor retail/office or warehouse/showroom uses with second floor office space. The building faces West 6th Avenue and the Arbutus Greenway with dedicated driveway parking in addition to ample street parking. Improvements include a grade level loading bay door and high ceilings throughout the ground floor.
- El precio de alquiler no incluye los servicios básicos, los gastos del inmueble ni los del edificio
- Espacio de oficina/sala de exposición de 2 plantas
- Planta baja con una altura de techo de 11 pies
- Segundo piso con una altura de techo de 9 pies
- Servicio eléctrico de 200 amperios
- Nuevo HVAC
- Puerta de carga nivelada: altura libre de 8 pies
DESCRIPCIÓN GENERAL DEL INMUEBLE
La propiedad está situada a media manzana en el lado sur de la Sexta Avenida Oeste, con acceso directo al centro de Vancouver, el corredor de Broadway, el tránsito, los senderos para bicicletas, las principales arterias y la futura estación de SkyTrain de Broadway. La zona conocida como Burrard Slopes se ha convertido en un destino para cafeterías, restaurantes, cafeterías, diseñadores de interiores, salas de exposición de decoración del hogar, arquitectos, galerías, usuarios de tecnología, minoristas especializados y concesionarios de automóviles de lujo. La oportunidad de ubicación es un edificio de dos pisos ideal para tiendas, oficinas o almacenes o salas de exposición en la planta baja, con espacio para oficinas en el segundo piso. El edificio da a la Sexta Avenida Oeste y a la Vía Verde de Arbutus, con estacionamiento exclusivo en la entrada, además de un amplio estacionamiento en la calle. Las mejoras incluyen una puerta de carga a nivel del suelo y techos altos en toda la planta baja.
INFORMACIÓN DEL EDIFICIO
Elaborado por
1632-1644 W 6th Ave
Parece que se ha producido un error al enviar tu mensaje. Vuelve a intentarlo.
Gracias. Se ha enviado tu mensaje.




