Tu correo electrónico ha sido enviado.


Parte de la información se ha traducido automáticamente.
ASPECTOS DESTACADOS
- Tri County Business Park presenta un campus de 14 edificios que ofrece opciones de arrendamiento flexibles, oportunidades de crecimiento y una mentalidad de propiedad creativa.
- Disfrute de un centro de oficinas, industria ligera y servicios estilo jardín con una tienda de delicatessen y un centro de conferencias en el lugar para satisfacer una variedad de necesidades comerciales.
- Ubicado en la convergencia de los tres condados más poblados de Tampa Bay, ofrece una mano de obra y una base de clientes de comunidades prósperas.
- Rodeado de servicios, el parque industrial se encuentra a cinco minutos en coche de dos importantes centros comerciales con tiendas, restaurantes y servicios personales.
- Viaje fácilmente, con acceso a Race Track Road y a cinco minutos en coche de la FL 580, que lleva a Tampa en 25 minutos y a Clearwater en 30 minutos.
- La administración de la propiedad in situ, la propiedad comprometida y un equipo de corretaje proactivo y receptivo están dedicados a todos los inquilinos actuales y futuros.
INFORMACIÓN DEL PARQUE EMPRESARIAL
CARACTERÍSTICAS
- Acceso 24 horas
- Centro de conferencias
- Property manager in situ
- Sistema de seguridad
- Señalización
- Climatización independiente
- Frente al mar
- Acceso de minusválidos
- Almacén/trastero
- Aire acondicionado
ESPACIOS DISPONIBLES(12)
Mostrar el precio como
- ESPACIO
- TAMAÑO
- DURACIÓN
- PRECIO
- USO
- DISTRIBUCIÓN
- DISPONIBILIDAD
100% office unit with a mix of private offices and open area; 4 offices, 2 conference rooms, reception area, breakroom and 2 restrooms
- Construido totalmente como Oficina estándar
- Con capacidad para 10-32 personas
- 2 salas de conferencias
- Plano de planta en su mayoría abierta
- 4 oficinas privadas
| Espacio | Tamaño | Duración | Precio | Uso | Distribución | Disponible |
| Planta 1, módulo A2 | 372 m² | Negociable | Bajo solicitud Bajo solicitud Bajo solicitud Bajo solicitud | Oficina | Construcción total | Inmediata |
12700-12722 Dupont Cir - Planta 1, módulo A2
- ESPACIO
- TAMAÑO
- DURACIÓN
- PRECIO
- USO
- DISTRIBUCIÓN
- DISPONIBILIDAD
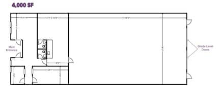
4,000 SF of flex space available with ±1,460 SF of office and ±2,540 SF of warehouse with 2 grade-level doors and 12' clear height
- Incluye 136 m² de espacio exclusivo para oficinas
- 2 accesos directos con vehículo
- Espacio en excelentes condiciones
| Espacio | Tamaño | Duración | Precio | Uso | Distribución | Disponible |
| Planta 1 - B2 | 372 m² | Negociable | Bajo solicitud Bajo solicitud Bajo solicitud Bajo solicitud | Flex | Construcción parcial | Inmediata |
12802-12824 Dupont Cir - Planta 1 - B2
- ESPACIO
- TAMAÑO
- DURACIÓN
- PRECIO
- USO
- DISTRIBUCIÓN
- DISPONIBILIDAD
End-cap 2,500 SF of office space coming available. The unit does have one grade-level loading door. Landlord is open to discussing removal of some back office if a Tenant needs a warehousing component - to be further discussed.
- Con capacidad para 5 personas
- Salas de conferencias
- Área de recepción
- Baños privados
- Falsos techos
- Luz natural
- Oficinas divididas
- Aire acondicionado central
- Sala de impresión y fotocopias
- Espacio esquinero
- Almacenamiento seguro
- Climatización disponible fuera de horario
2,500 SF available at Tri County Business Park! The unit is currently 100% exposed ceiling and climate-controlled warehouse space with two restrooms, however, the owner is willing to install a partition wall to create a front office / showroom area based on the Tenant's needs. C5B offers 12' clear height and one grade-level loading door.
- Aire acondicionado central
- Climatización disponible fuera de horario
- Techos altos
- Techo a la vista
10,000 SF available for lease. Currently comprised of two 5,000 SF units with separate electrical; Tenant can occupy either one of the units (C7 or C8) or the entire 10,000 SF space.
- Aire acondicionado central
- Área de recepción
- Almacenamiento seguro
- Iluminación empotrada
- Climatización disponible fuera de horario
- Techo a la vista
- Oficinas divididas
- Baños privados
- Falsos techos
- Techos altos
- Salas de conferencias
10,000 SF coming available for lease. Currently comprised of two 5,000 SF units with separate electrical; an incoming tenant can lease either 5,000 SF (one of the units) or both units. The building offers 12' clear height and Landlord is open to office demo subject to deal terms.
10,000 SF available for lease. Currently comprised of two 5,000 SF units with separate electrical; Tenant can occupy either one of the units (C7 or C8) or the entire 10,000 SF space.
- 1 zona de carga
- Oficinas divididas
- Almacenamiento seguro
- Techos altos
- Salas de conferencias
- Espacio esquinero
- Aire acondicionado central
- Baños privados
- Falsos techos
- Climatización disponible fuera de horario
- Techo a la vista
| Espacio | Tamaño | Duración | Precio | Uso | Distribución | Disponible |
| Planta 1, módulo C1A | 232 m² | Negociable | Bajo solicitud Bajo solicitud Bajo solicitud Bajo solicitud | Oficina | - | Inmediata |
| Planta 1 - C5B | 232 m² | Negociable | Bajo solicitud Bajo solicitud Bajo solicitud Bajo solicitud | Flex | - | Inmediata |
| Planta 1 - C7 | 465 m² | Negociable | Bajo solicitud Bajo solicitud Bajo solicitud Bajo solicitud | Flex | - | Inmediata |
| Planta 1 - C7-8 | 465-929 m² | Negociable | Bajo solicitud Bajo solicitud Bajo solicitud Bajo solicitud | Flex | - | Inmediata |
| Planta 1 - C8 | 465 m² | Negociable | Bajo solicitud Bajo solicitud Bajo solicitud Bajo solicitud | Flex | - | Inmediata |
12900-12928 Dupont Cir - Planta 1, módulo C1A
12900-12928 Dupont Cir - Planta 1 - C5B
12900-12928 Dupont Cir - Planta 1 - C7
12900-12928 Dupont Cir - Planta 1 - C7-8
12900-12928 Dupont Cir - Planta 1 - C8
- ESPACIO
- TAMAÑO
- DURACIÓN
- PRECIO
- USO
- DISTRIBUCIÓN
- DISPONIBILIDAD
6,250 SF coming available for lease. The space currently provides 5,166 SF of dedicated office space with private restrooms as well as 1,084 SF of secured warehouse storage offering 12' clear height with one grade-level (or drive-in) loading door.
- Incluye 480 m² de espacio exclusivo para oficinas
- Aire acondicionado central
- Almacenamiento seguro
- Climatización disponible fuera de horario
- Techo a la vista
- 1 zona de carga
- Oficinas divididas
- Falsos techos
- Salas de conferencias
| Espacio | Tamaño | Duración | Precio | Uso | Distribución | Disponible |
| Planta 1 - E6 | 581 m² | Negociable | Bajo solicitud Bajo solicitud Bajo solicitud Bajo solicitud | Flex | Construcción parcial | Inmediata |
13200-13470 McCormick Dr - Planta 1 - E6
- ESPACIO
- TAMAÑO
- DURACIÓN
- PRECIO
- USO
- DISTRIBUCIÓN
- DISPONIBILIDAD
4,000 SF of flex space coming available. The unit is 100% climate-controlled and the HVAC warehouse offers 14' clear height and drive-in loading. Recently renovated by the tenant, this space is in great condition.
- Incluye 195 m² de espacio exclusivo para oficinas
- Espacio en excelentes condiciones
| Espacio | Tamaño | Duración | Precio | Uso | Distribución | Disponible |
| Planta 1 - H2 | 372 m² | Negociable | Bajo solicitud Bajo solicitud Bajo solicitud Bajo solicitud | Flex | Construcción parcial | Inmediata |
13800-13818 Wright Cir - Planta 1 - H2
- ESPACIO
- TAMAÑO
- DURACIÓN
- PRECIO
- USO
- DISTRIBUCIÓN
- DISPONIBILIDAD
Up to 22,500 SF coming available for lease on 5/1/2026. The space is comprised of multiple contiguous units and can be split to accomodate many different tenant sizes down to 3,125 SF. Many of the spaces also include 100% climate-controlled storage / warehousing space with grade-level loading and 12' clear height. Please contact Fortress Commercial Real Estate for more information.
- Espacio en excelentes condiciones
- Área de recepción
- Sala de impresión y fotocopias
- Falsos techos
- Instalaciones de baño arrendadas
- Climatización disponible fuera de horario
- Techo a la vista
- Acceso de minusválidos
- Aire acondicionado central
- Baños privados
- Almacenamiento seguro
- Iluminación empotrada
- Techos altos
- Salas de conferencias
- Espacio esquinero
3,125 SF of flex space coming available 1/1/2026. With climate-controlled storage, 12' clear height and a grade-level door, this is a fantastic space for light distribution and assembly within the drop-ceiling area.
- El precio puede no incluir ciertos servicios básicos, del edificio o gastos del inmueble
- Oficinas divididas
- Almacenamiento seguro
- Techos altos
- Aire acondicionado central
- Área de recepción
- Falsos techos
| Espacio | Tamaño | Duración | Precio | Uso | Distribución | Disponible |
| Planta 1 - L1-L4 | 290-2.090 m² | Negociable | Bajo solicitud Bajo solicitud Bajo solicitud Bajo solicitud | Flex | - | 01/05/2026 |
| Planta 1 - L4A | 290 m² | Negociable | Bajo solicitud Bajo solicitud Bajo solicitud Bajo solicitud | Flex | - | 01/01/2026 |
14100-14180 Mccormick Dr - Planta 1 - L1-L4
14100-14180 Mccormick Dr - Planta 1 - L4A
- ESPACIO
- TAMAÑO
- DURACIÓN
- PRECIO
- USO
- DISTRIBUCIÓN
- DISPONIBILIDAD
6,250 SF of fully climate-controlled storage and distribution space coming available 9/1/2025. Unit is fully climate-controlled with 14' HVAC warehouse and include one (1) truck-well loading door with a mechanical pit leveler and weather seals. There is also a cutout to add another loading door if needed. The space is currently in shell condition and Owner is willing to Build to Suit office based on tenants' needs.
- 1 muelle de carga
| Espacio | Tamaño | Duración | Precio | Uso | Distribución | Disponible |
| Planta 1 - N7 | 581 m² | Negociable | Bajo solicitud Bajo solicitud Bajo solicitud Bajo solicitud | Flex | Construcción parcial | Inmediata |
14400-14660 Carlson Cir - Planta 1 - N7
12700-12722 Dupont Cir - Planta 1, módulo A2
| Tamaño | 372 m² |
| Duración | Negociable |
| Precio | Bajo solicitud |
| Uso | Oficina |
| Distribución | Construcción total |
| Disponible | Inmediata |
100% office unit with a mix of private offices and open area; 4 offices, 2 conference rooms, reception area, breakroom and 2 restrooms
- Construido totalmente como Oficina estándar
- Plano de planta en su mayoría abierta
- Con capacidad para 10-32 personas
- 4 oficinas privadas
- 2 salas de conferencias
12802-12824 Dupont Cir - Planta 1 - B2
| Tamaño | 372 m² |
| Duración | Negociable |
| Precio | Bajo solicitud |
| Uso | Flex |
| Distribución | Construcción parcial |
| Disponible | Inmediata |
4,000 SF of flex space available with ±1,460 SF of office and ±2,540 SF of warehouse with 2 grade-level doors and 12' clear height
- Incluye 136 m² de espacio exclusivo para oficinas
- Espacio en excelentes condiciones
- 2 accesos directos con vehículo
12900-12928 Dupont Cir - Planta 1, módulo C1A
| Tamaño | 232 m² |
| Duración | Negociable |
| Precio | Bajo solicitud |
| Uso | Oficina |
| Distribución | - |
| Disponible | Inmediata |
End-cap 2,500 SF of office space coming available. The unit does have one grade-level loading door. Landlord is open to discussing removal of some back office if a Tenant needs a warehousing component - to be further discussed.
- Con capacidad para 5 personas
- Oficinas divididas
- Salas de conferencias
- Aire acondicionado central
- Área de recepción
- Sala de impresión y fotocopias
- Baños privados
- Espacio esquinero
- Falsos techos
- Almacenamiento seguro
- Luz natural
- Climatización disponible fuera de horario
12900-12928 Dupont Cir - Planta 1 - C5B
| Tamaño | 232 m² |
| Duración | Negociable |
| Precio | Bajo solicitud |
| Uso | Flex |
| Distribución | - |
| Disponible | Inmediata |
2,500 SF available at Tri County Business Park! The unit is currently 100% exposed ceiling and climate-controlled warehouse space with two restrooms, however, the owner is willing to install a partition wall to create a front office / showroom area based on the Tenant's needs. C5B offers 12' clear height and one grade-level loading door.
- Aire acondicionado central
- Techos altos
- Climatización disponible fuera de horario
- Techo a la vista
12900-12928 Dupont Cir - Planta 1 - C7
| Tamaño | 465 m² |
| Duración | Negociable |
| Precio | Bajo solicitud |
| Uso | Flex |
| Distribución | - |
| Disponible | Inmediata |
10,000 SF available for lease. Currently comprised of two 5,000 SF units with separate electrical; Tenant can occupy either one of the units (C7 or C8) or the entire 10,000 SF space.
- Aire acondicionado central
- Oficinas divididas
- Área de recepción
- Baños privados
- Almacenamiento seguro
- Falsos techos
- Iluminación empotrada
- Techos altos
- Climatización disponible fuera de horario
- Salas de conferencias
- Techo a la vista
12900-12928 Dupont Cir - Planta 1 - C7-8
| Tamaño | 465-929 m² |
| Duración | Negociable |
| Precio | Bajo solicitud |
| Uso | Flex |
| Distribución | - |
| Disponible | Inmediata |
10,000 SF coming available for lease. Currently comprised of two 5,000 SF units with separate electrical; an incoming tenant can lease either 5,000 SF (one of the units) or both units. The building offers 12' clear height and Landlord is open to office demo subject to deal terms.
12900-12928 Dupont Cir - Planta 1 - C8
| Tamaño | 465 m² |
| Duración | Negociable |
| Precio | Bajo solicitud |
| Uso | Flex |
| Distribución | - |
| Disponible | Inmediata |
10,000 SF available for lease. Currently comprised of two 5,000 SF units with separate electrical; Tenant can occupy either one of the units (C7 or C8) or the entire 10,000 SF space.
- 1 zona de carga
- Aire acondicionado central
- Oficinas divididas
- Baños privados
- Almacenamiento seguro
- Falsos techos
- Techos altos
- Climatización disponible fuera de horario
- Salas de conferencias
- Techo a la vista
- Espacio esquinero
13200-13470 McCormick Dr - Planta 1 - E6
| Tamaño | 581 m² |
| Duración | Negociable |
| Precio | Bajo solicitud |
| Uso | Flex |
| Distribución | Construcción parcial |
| Disponible | Inmediata |
6,250 SF coming available for lease. The space currently provides 5,166 SF of dedicated office space with private restrooms as well as 1,084 SF of secured warehouse storage offering 12' clear height with one grade-level (or drive-in) loading door.
- Incluye 480 m² de espacio exclusivo para oficinas
- 1 zona de carga
- Aire acondicionado central
- Oficinas divididas
- Almacenamiento seguro
- Falsos techos
- Climatización disponible fuera de horario
- Salas de conferencias
- Techo a la vista
13800-13818 Wright Cir - Planta 1 - H2
| Tamaño | 372 m² |
| Duración | Negociable |
| Precio | Bajo solicitud |
| Uso | Flex |
| Distribución | Construcción parcial |
| Disponible | Inmediata |
4,000 SF of flex space coming available. The unit is 100% climate-controlled and the HVAC warehouse offers 14' clear height and drive-in loading. Recently renovated by the tenant, this space is in great condition.
- Incluye 195 m² de espacio exclusivo para oficinas
- Espacio en excelentes condiciones
14100-14180 Mccormick Dr - Planta 1 - L1-L4
| Tamaño | 290-2.090 m² |
| Duración | Negociable |
| Precio | Bajo solicitud |
| Uso | Flex |
| Distribución | - |
| Disponible | 01/05/2026 |
Up to 22,500 SF coming available for lease on 5/1/2026. The space is comprised of multiple contiguous units and can be split to accomodate many different tenant sizes down to 3,125 SF. Many of the spaces also include 100% climate-controlled storage / warehousing space with grade-level loading and 12' clear height. Please contact Fortress Commercial Real Estate for more information.
- Espacio en excelentes condiciones
- Aire acondicionado central
- Área de recepción
- Baños privados
- Sala de impresión y fotocopias
- Almacenamiento seguro
- Falsos techos
- Iluminación empotrada
- Instalaciones de baño arrendadas
- Techos altos
- Climatización disponible fuera de horario
- Salas de conferencias
- Techo a la vista
- Espacio esquinero
- Acceso de minusválidos
14100-14180 Mccormick Dr - Planta 1 - L4A
| Tamaño | 290 m² |
| Duración | Negociable |
| Precio | Bajo solicitud |
| Uso | Flex |
| Distribución | - |
| Disponible | 01/01/2026 |
3,125 SF of flex space coming available 1/1/2026. With climate-controlled storage, 12' clear height and a grade-level door, this is a fantastic space for light distribution and assembly within the drop-ceiling area.
- El precio puede no incluir ciertos servicios básicos, del edificio o gastos del inmueble
- Aire acondicionado central
- Oficinas divididas
- Área de recepción
- Almacenamiento seguro
- Falsos techos
- Techos altos
14400-14660 Carlson Cir - Planta 1 - N7
| Tamaño | 581 m² |
| Duración | Negociable |
| Precio | Bajo solicitud |
| Uso | Flex |
| Distribución | Construcción parcial |
| Disponible | Inmediata |
6,250 SF of fully climate-controlled storage and distribution space coming available 9/1/2025. Unit is fully climate-controlled with 14' HVAC warehouse and include one (1) truck-well loading door with a mechanical pit leveler and weather seals. There is also a cutout to add another loading door if needed. The space is currently in shell condition and Owner is willing to Build to Suit office based on tenants' needs.
- 1 muelle de carga
PRINCIPALES INQUILINOS EN ESTE INMUEBLE
- PLANTA
- NOMBRE DEL INQUILINO
- SECTOR
- 1
- A&D Color Graphics, Inc
- Fábricas
- 1
- Clextral, Inc.
- Fábricas
- 1
- Evolution Studios & Media
- Servicios técnicos, científicos y profesionales
- 1
- Mac Of All Trades
- Servicios técnicos, científicos y profesionales
- 1
- Seal Dynamics
- Fábricas
- 1
- Seven Seas Water Corp
- Construcción
RESUMEN DEL PARQUE
El Parque Empresarial del Condado de Tri es un campus de 492,235 pies cuadrados con 14 edificios de oficinas ajardinadas de un solo piso, industriales ligeros y centros de servicio. Los edificios ofrecen alturas despejadas de 12 a 14 pies, puertas a nivel de suelo y carga a la altura de los muelles. Además de un entorno exuberante tipo parque, el campus cuenta con opciones gastronómicas en Ellie's Breakfast & Lunch, un centro de conferencias y un equipo dedicado a la administración de la propiedad. El parque empresarial es de un nuevo propietario, que recientemente invirtió en mejorar el paisajismo y pintar el exterior de todos los edificios. Este comprometido equipo de propietarios ofrece una mentalidad creativa y opciones de arrendamiento flexibles. Con una ubicación ideal en el epicentro de los tres condados más poblados de Tampa Bay, Hillsborough, Pinellas y Pasco, el Parque Empresarial Tri County atrae a varias empresas. Las comunidades residenciales circundantes, como Westchase, proporcionan una base demográfica próspera que permite el acceso a los principales responsables de la toma de decisiones y a una mano de obra diversa de más de un millón de residentes a 30 minutos en automóvil. Los inquilinos se encuentran a solo dos minutos de los numerosos restaurantes, tiendas y servicios personales del centro comercial Westchase, que incluye Winn-Dixie, CVS y Starbucks. El parque empresarial Tri County brinda acceso inmediato a Race Track Road, la principal arteria norte-sur de la zona, lo que permite desplazarse rápidamente. La propiedad está convenientemente ubicada a solo cinco minutos de Florida 580, a 25 minutos del centro de Tampa y a 30 minutos de Clearwater.
ACERCA NOROESTE DEL CONDADO DE HILLSBOROUGH
El noroeste del condado de Hillsborough es el nexo de unión de los tres condados de más rápido crecimiento de la región de Tampa: Hillsborough, Pinellas y Pasco. La creciente población de estas zonas es diversa en todos los niveles de ingresos medios y los inquilinos industriales tienen acceso tanto regional como de última milla a algunos de los nodos más prósperos de Tampa y a algunas de las bolsas más profundas de gasto y poder adquisitivo de los consumidores.
La parte sureste de la zona tiene acceso a una terminal intermodal de CSX y al puerto de Tampa (incluido Port Sutton), que es el mayor puerto de Florida por tonelaje de carga y por superficie. Casi todo el noroeste del condado de Hillsborough se encuentra a menos de 16 km del Aeropuerto Internacional de Tampa.
El submercado también está directamente comunicado por las interestatales 4 y 275 y, en la sección noreste, por la interestatal 75. La conectividad proporciona a los distribuidores potenciales acceso a toda Florida en un viaje de ida y vuelta de un solo día. Como reflejo de la fortaleza de su demanda industrial, el noroeste del condado de Hillsborough ha sido constantemente una de las zonas industriales más fuertes de Tampa, con una de las tasas medias de vacantes más bajas de la región.
DATOS DEMOGRÁFICOS
ACCESIBILIDAD REGIONAL
PUNTOS DE INTERÉS
LOCALES |
||
|---|---|---|
| Prestige Portraits | Fotógrafo | 10 min. a pie |
| Burn Boot Camp | Fitness | 10 min. a pie |
HOTELES |
|
|---|---|
| Residence Inn |
78 habitaciones
8 min. en coche
|
| Holiday Inn Express |
81 habitaciones
7 min. en coche
|
| Courtyard |
99 habitaciones
7 min. en coche
|
| Hampton by Hilton |
113 habitaciones
8 min. en coche
|
| Hilton Garden Inn |
87 habitaciones
8 min. en coche
|
AGENTE DE ALQUILER
Oliver De La Croix-Vaubois, Director | Industrial Leasing & Sales
Antes de unirse a Fortress Commercial Real Estate, Oliver pasó 5 años en el equipo industrial de Colliers Central Florida, donde dirigió el arrendamiento de más de 2 millones de pies cuadrados de propiedades industriales. Oliver recibió el premio Colliers Rising Star y formó parte del comité directivo nacional del Colliers Emerging Industrial Leaders Group.
DESCRIPCIÓN DEL PROPIETARIO
OTROS INMUEBLES DE LA CARTERA DE GENET PROPERTY GROUP
Elaborado por
Tri County Business Park | Tampa, FL 33626
Parece que se ha producido un error al enviar tu mensaje. Vuelve a intentarlo.
Gracias. Se ha enviado tu mensaje.

















