Tu correo electrónico ha sido enviado.



Parte de la información se ha traducido automáticamente.
ASPECTOS DESTACADOS
- Gran oportunidad.
- One Sansome Street's floorplates accommodate office intensive and open-plan users.
- Ideally located in the heart of the Financial District with fantastic views of the Golden Gate Bridge from the upper floors.
- A state-of-the-art fitness center with new showers/ lockers was recently delivered in Q3 2024.
ESPACIOS DISPONIBLES(9)
Mostrar el precio como
- ESPACIO
- TAMAÑO
- DURACIÓN
- PRECIO
- USO
- DISTRIBUCIÓN
- DISPONIBILIDAD
Premier office space located in the heart of the Financial District. Four private offices, one conference room, a kitchen, a storage area, and an open area.
- Construido totalmente como Oficina estándar
- 4 oficinas privadas
- Cocina
- Plano de planta en su mayoría abierta
- 1 sala de conferencias
Premier office space located in the heart of the Financial District. Currently in shell condition, available for TIs.
Premier office space located in the heart of the Financial District. Good light and city views, two conference rooms, five offices/meeting rooms, a large kitchen/all-hands, a large open area, and double-door elevator identity. Fantastic Golden Gate Bridge to Bay Bridge views from upper floors.
- Construido totalmente como Oficina estándar
- 5 oficinas privadas
- Área de recepción
- Luz natural
- Plano de planta en su mayoría abierta
- 2 salas de conferencias
- Cocina
Premier office space located in the heart of the Financial District. Four conference rooms, nine private offices, a break room, storage space, double-door elevator identity, ad reception. Fantastic Golden Gate Bridge to Bay Bridge views from upper floors.
- Construido totalmente como Oficina estándar
- 9 oficinas privadas
- Área de recepción
- Plano de planta en su mayoría abierta
- 4 salas de conferencias
- Identidad de ascensor de doble puerta
Premier office space located in the heart of the Financial District. One conference room, six private offices, an open area for workstations, and a break room. Fantastic Golden Gate Bridge to Bay Bridge views from upper floors.
- Construido totalmente como Oficina estándar
- 6 oficinas privadas
- Área de recepción
- Plano de planta en su mayoría abierta
- 1 sala de conferencias
- Área abierta para estaciones de trabajo
Premier office space located in the heart of the Financial District. Full floor to be delivered in shell condition. Part of the 104,771-square-foot contiguous block (Floors 22-27), 17,559 rentable square feet on this suite. Fantastic Golden Gate Bridge to Bay Bridge views from upper floors.
- Plano de planta en su mayoría abierta
- Calefacción y aire acondicionado centrales
- Se puede combinar con otros inmuebles hasta un total de 6.495 m² de espacio adyacente
- Espacio de servicios profesionales de segunda generación
Premier office space located in the heart of the Financial District. Second-generation professional services space offering a 104,000-square-foot contiguous block. Fantastic Golden Gate Bridge to Bay Bridge views from upper floors.
- Plano de planta en su mayoría abierta
- Calefacción y aire acondicionado centrales
- Se puede combinar con otros inmuebles hasta un total de 6.495 m² de espacio adyacente
- Espacio de servicios profesionales de segunda generación
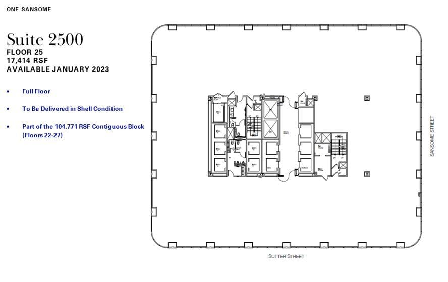
Premier office space located in the heart of the Financial District. Full floor to be delivered in shell condition. Part of the 104,771-square-foot contiguous block (Floors 22-27). 17,414 rentable square feet on this suite. Fantastic Golden Gate Bridge to Bay Bridge views from upper floors.
- Plano de planta en su mayoría abierta
- Calefacción y aire acondicionado centrales
- Se puede combinar con otros inmuebles hasta un total de 6.495 m² de espacio adyacente
- Espacio de servicios profesionales de segunda generación
Premier office space located in the heart of the Financial District. Full floor to be delivered in shell condition. Part of the 104,771-square-foot contiguous block (Floors 22-27). 17,384 rentable square feet on this suite. Fantastic Golden Gate Bridge to Bay Bridge views from upper floors.
- Plano de planta en su mayoría abierta
- Calefacción y aire acondicionado centrales
- Se puede combinar con otros inmuebles hasta un total de 6.495 m² de espacio adyacente
- Espacio de servicios profesionales de segunda generación
| Espacio | Tamaño | Duración | Precio | Uso | Distribución | Disponible |
| Planta 7, módulo 725 | 210 m² | Negociable | Bajo solicitud Bajo solicitud Bajo solicitud Bajo solicitud | Oficina | Construcción total | Inmediata |
| Planta 9, módulo 920 | 280 m² | Negociable | Bajo solicitud Bajo solicitud Bajo solicitud Bajo solicitud | Oficina | Espacio sin acabar | Inmediata |
| Planta 15, módulo 1500 | 902 m² | Negociable | Bajo solicitud Bajo solicitud Bajo solicitud Bajo solicitud | Oficina | Construcción total | Inmediata |
| Planta 18, módulo 1800 | 530 m² | Negociable | Bajo solicitud Bajo solicitud Bajo solicitud Bajo solicitud | Oficina | Construcción total | Inmediata |
| Planta 18, módulo 1810 | 280 m² | Negociable | Bajo solicitud Bajo solicitud Bajo solicitud Bajo solicitud | Oficina | Construcción total | Inmediata |
| Planta 23, módulo 2300 | 1.631 m² | Negociable | Bajo solicitud Bajo solicitud Bajo solicitud Bajo solicitud | Oficina | Espacio sin acabar | Inmediata |
| Planta 24, módulo 2400 | 1.631 m² | Negociable | Bajo solicitud Bajo solicitud Bajo solicitud Bajo solicitud | Oficina | Espacio sin acabar | Inmediata |
| Planta 25, módulo 2500 | 1.618 m² | Negociable | Bajo solicitud Bajo solicitud Bajo solicitud Bajo solicitud | Oficina | Espacio sin acabar | Inmediata |
| Planta 26, módulo 2600 | 1.615 m² | Negociable | Bajo solicitud Bajo solicitud Bajo solicitud Bajo solicitud | Oficina | Espacio sin acabar | Inmediata |
Planta 7, módulo 725
| Tamaño |
| 210 m² |
| Duración |
| Negociable |
| Precio |
| Bajo solicitud Bajo solicitud Bajo solicitud Bajo solicitud |
| Uso |
| Oficina |
| Distribución |
| Construcción total |
| Disponible |
| Inmediata |
Planta 9, módulo 920
| Tamaño |
| 280 m² |
| Duración |
| Negociable |
| Precio |
| Bajo solicitud Bajo solicitud Bajo solicitud Bajo solicitud |
| Uso |
| Oficina |
| Distribución |
| Espacio sin acabar |
| Disponible |
| Inmediata |
Planta 15, módulo 1500
| Tamaño |
| 902 m² |
| Duración |
| Negociable |
| Precio |
| Bajo solicitud Bajo solicitud Bajo solicitud Bajo solicitud |
| Uso |
| Oficina |
| Distribución |
| Construcción total |
| Disponible |
| Inmediata |
Planta 18, módulo 1800
| Tamaño |
| 530 m² |
| Duración |
| Negociable |
| Precio |
| Bajo solicitud Bajo solicitud Bajo solicitud Bajo solicitud |
| Uso |
| Oficina |
| Distribución |
| Construcción total |
| Disponible |
| Inmediata |
Planta 18, módulo 1810
| Tamaño |
| 280 m² |
| Duración |
| Negociable |
| Precio |
| Bajo solicitud Bajo solicitud Bajo solicitud Bajo solicitud |
| Uso |
| Oficina |
| Distribución |
| Construcción total |
| Disponible |
| Inmediata |
Planta 23, módulo 2300
| Tamaño |
| 1.631 m² |
| Duración |
| Negociable |
| Precio |
| Bajo solicitud Bajo solicitud Bajo solicitud Bajo solicitud |
| Uso |
| Oficina |
| Distribución |
| Espacio sin acabar |
| Disponible |
| Inmediata |
Planta 24, módulo 2400
| Tamaño |
| 1.631 m² |
| Duración |
| Negociable |
| Precio |
| Bajo solicitud Bajo solicitud Bajo solicitud Bajo solicitud |
| Uso |
| Oficina |
| Distribución |
| Espacio sin acabar |
| Disponible |
| Inmediata |
Planta 25, módulo 2500
| Tamaño |
| 1.618 m² |
| Duración |
| Negociable |
| Precio |
| Bajo solicitud Bajo solicitud Bajo solicitud Bajo solicitud |
| Uso |
| Oficina |
| Distribución |
| Espacio sin acabar |
| Disponible |
| Inmediata |
Planta 26, módulo 2600
| Tamaño |
| 1.615 m² |
| Duración |
| Negociable |
| Precio |
| Bajo solicitud Bajo solicitud Bajo solicitud Bajo solicitud |
| Uso |
| Oficina |
| Distribución |
| Espacio sin acabar |
| Disponible |
| Inmediata |
Planta 7, módulo 725
| Tamaño | 210 m² |
| Duración | Negociable |
| Precio | Bajo solicitud |
| Uso | Oficina |
| Distribución | Construcción total |
| Disponible | Inmediata |
Premier office space located in the heart of the Financial District. Four private offices, one conference room, a kitchen, a storage area, and an open area.
- Construido totalmente como Oficina estándar
- Plano de planta en su mayoría abierta
- 4 oficinas privadas
- 1 sala de conferencias
- Cocina
Planta 9, módulo 920
| Tamaño | 280 m² |
| Duración | Negociable |
| Precio | Bajo solicitud |
| Uso | Oficina |
| Distribución | Espacio sin acabar |
| Disponible | Inmediata |
Premier office space located in the heart of the Financial District. Currently in shell condition, available for TIs.
Planta 15, módulo 1500
| Tamaño | 902 m² |
| Duración | Negociable |
| Precio | Bajo solicitud |
| Uso | Oficina |
| Distribución | Construcción total |
| Disponible | Inmediata |
Premier office space located in the heart of the Financial District. Good light and city views, two conference rooms, five offices/meeting rooms, a large kitchen/all-hands, a large open area, and double-door elevator identity. Fantastic Golden Gate Bridge to Bay Bridge views from upper floors.
- Construido totalmente como Oficina estándar
- Plano de planta en su mayoría abierta
- 5 oficinas privadas
- 2 salas de conferencias
- Área de recepción
- Cocina
- Luz natural
Planta 18, módulo 1800
| Tamaño | 530 m² |
| Duración | Negociable |
| Precio | Bajo solicitud |
| Uso | Oficina |
| Distribución | Construcción total |
| Disponible | Inmediata |
Premier office space located in the heart of the Financial District. Four conference rooms, nine private offices, a break room, storage space, double-door elevator identity, ad reception. Fantastic Golden Gate Bridge to Bay Bridge views from upper floors.
- Construido totalmente como Oficina estándar
- Plano de planta en su mayoría abierta
- 9 oficinas privadas
- 4 salas de conferencias
- Área de recepción
- Identidad de ascensor de doble puerta
Planta 18, módulo 1810
| Tamaño | 280 m² |
| Duración | Negociable |
| Precio | Bajo solicitud |
| Uso | Oficina |
| Distribución | Construcción total |
| Disponible | Inmediata |
Premier office space located in the heart of the Financial District. One conference room, six private offices, an open area for workstations, and a break room. Fantastic Golden Gate Bridge to Bay Bridge views from upper floors.
- Construido totalmente como Oficina estándar
- Plano de planta en su mayoría abierta
- 6 oficinas privadas
- 1 sala de conferencias
- Área de recepción
- Área abierta para estaciones de trabajo
Planta 23, módulo 2300
| Tamaño | 1.631 m² |
| Duración | Negociable |
| Precio | Bajo solicitud |
| Uso | Oficina |
| Distribución | Espacio sin acabar |
| Disponible | Inmediata |
Premier office space located in the heart of the Financial District. Full floor to be delivered in shell condition. Part of the 104,771-square-foot contiguous block (Floors 22-27), 17,559 rentable square feet on this suite. Fantastic Golden Gate Bridge to Bay Bridge views from upper floors.
- Plano de planta en su mayoría abierta
- Se puede combinar con otros inmuebles hasta un total de 6.495 m² de espacio adyacente
- Calefacción y aire acondicionado centrales
- Espacio de servicios profesionales de segunda generación
Planta 24, módulo 2400
| Tamaño | 1.631 m² |
| Duración | Negociable |
| Precio | Bajo solicitud |
| Uso | Oficina |
| Distribución | Espacio sin acabar |
| Disponible | Inmediata |
Premier office space located in the heart of the Financial District. Second-generation professional services space offering a 104,000-square-foot contiguous block. Fantastic Golden Gate Bridge to Bay Bridge views from upper floors.
- Plano de planta en su mayoría abierta
- Se puede combinar con otros inmuebles hasta un total de 6.495 m² de espacio adyacente
- Calefacción y aire acondicionado centrales
- Espacio de servicios profesionales de segunda generación
Planta 25, módulo 2500
| Tamaño | 1.618 m² |
| Duración | Negociable |
| Precio | Bajo solicitud |
| Uso | Oficina |
| Distribución | Espacio sin acabar |
| Disponible | Inmediata |
Premier office space located in the heart of the Financial District. Full floor to be delivered in shell condition. Part of the 104,771-square-foot contiguous block (Floors 22-27). 17,414 rentable square feet on this suite. Fantastic Golden Gate Bridge to Bay Bridge views from upper floors.
- Plano de planta en su mayoría abierta
- Se puede combinar con otros inmuebles hasta un total de 6.495 m² de espacio adyacente
- Calefacción y aire acondicionado centrales
- Espacio de servicios profesionales de segunda generación
Planta 26, módulo 2600
| Tamaño | 1.615 m² |
| Duración | Negociable |
| Precio | Bajo solicitud |
| Uso | Oficina |
| Distribución | Espacio sin acabar |
| Disponible | Inmediata |
Premier office space located in the heart of the Financial District. Full floor to be delivered in shell condition. Part of the 104,771-square-foot contiguous block (Floors 22-27). 17,384 rentable square feet on this suite. Fantastic Golden Gate Bridge to Bay Bridge views from upper floors.
- Plano de planta en su mayoría abierta
- Se puede combinar con otros inmuebles hasta un total de 6.495 m² de espacio adyacente
- Calefacción y aire acondicionado centrales
- Espacio de servicios profesionales de segunda generación
DESCRIPCIÓN GENERAL DEL INMUEBLE
Edificio de oficinas ubicado en San Francisco, CA.
- Acceso 24 horas
- Atrio
- Control de accesos
- Centro de conferencias
- Patio
- Gimnasio
- Metro
- Property manager in situ
- Restaurante
- Con etiqueta Energy Star
- Almacenamiento de bicicletas
- Aire acondicionado
INFORMACIÓN DEL EDIFICIO
PRINCIPALES INQUILINOS
- PLANTA
- NOMBRE DEL INQUILINO
- SECTOR
- 21
- Chartboost
- Servicios técnicos, científicos y profesionales
- Varios
- Department of Financial Protection & Innovation
- Administración pública
- 32
- FivePoint
- Inmobiliarias
- 37
- H.I.G. Capital
- Finanzas y seguros
- 19
- McCarthy Building Companies
- Construcción
- 35
- Premier Workspaces
- Inmobiliarias
- 32
- Starwood Capital Group
- Inmobiliarias
- Varios
- U.S. Department of Housing and Urban Development
- Administración pública
- 33
- Wish
- Minorista
- 30
- Zip
- Servicios técnicos, científicos y profesionales
SOSTENIBILIDAD
SOSTENIBILIDAD
ENERGY STAR® Energy Star es un programa de la EPA (Agencia de Protección Ambiental de Estados Unidos) y el DOE (Departamento de Energía de los Estados Unidos) que fomenta la eficiencia energética y ofrece información sencilla, fiable y objetiva que los consumidores y las empresas pueden usar para tomar decisiones fundamentadas. Miles de organizaciones industriales, comerciales, de servicios básicos, estatales y locales se asocian con la EPA para ofrecer soluciones de eficiencia energética que ahorran dinero y protegen el clima mientras mejoran la calidad del aire y protegen la salud pública. La puntuación Energy Star compara el rendimiento energético de un edificio con el de edificios similares en todo el país y tiene en cuenta las diferencias en las condiciones de funcionamiento, los datos meteorológicos regionales y otras consideraciones importantes. La certificación se otorga anualmente, por lo que los edificios que la tengan deben mantener su alto rendimiento para obtenerla año tras año. Para obtener la certificación Energy Star, el edificio debe obtener 75 o más puntos en la escala de 1 a 100 de la EPA. Esa puntuación mínima indica que su rendimiento energético es mejor que al menos el 75 % de los edificios similares de todo el país. Esta puntuación del 1 al 100 de Energy Star se basa en el uso real medido de energía del edificio y se calcula en la herramienta Energy Star Portfolio Manager de la EPA.
Elaborado por
One Sansome Street | 1 Sansome St
Parece que se ha producido un error al enviar tu mensaje. Vuelve a intentarlo.
Gracias. Se ha enviado tu mensaje.


















